HPG-950-1: The Maplewood - House Plan Gallery
HPG-950-1: The Maplewood - House Plan Gallery
HPG-950-1: The Maplewood - House Plan Gallery

Like this plan, but need some modifications?



View Answers to Frequently Asked Questions

HPG-950-1: The Maplewood

Base Price:
$800.00
  • Regular price $1,200.00 $800.00 On Sale

    Click the "Add to Cart" button to review your order.

    You're making a very smart decision to choose a House Plan Gallery plan!


    Bedrooms: 2 / Baths: 1

    Living Sq. Ft.: 950

    Width: 34' - 4" / Depth: 41' - 0"

    Architectural style(s):
    Country / Ranch

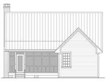
    This charming two-bedroom, one-bathroom house plan offers 950 square feet of efficient and comfortable living space. The welcoming 32-foot-wide front porch enhances the home's curb appeal, providing the perfect spot for morning coffee or evening relaxation.

    The spacious living room, complete with an optional fireplace, flows seamlessly into the kitchen, which features a raised bar for casual dining and plenty of storage. A screened back porch extends the living area outdoors, ideal for entertaining or enjoying peaceful surroundings.

    The primary bedroom offers ample space and a generous closet, while the second bedroom provides versatility for guests, family, or a home office. A dedicated flex space can be used for additional storage or stairs to an optional basement. The centrally located bathroom is conveniently designed with a tub/shower combination.

    This plan's timeless design and practical layout make it an excellent choice for families, retirees, or those seeking a cozy retreat.

    Foundation Type(s) Available:
    Basement / Crawlspace / Slab

    Levels: 1    Garage: No       Wall type: 2x6
    Exterior finish:  Siding    Bonus Room:  No

    =======

    Designer Comments:
    First Floor: 950 sq. ft. (living)
    Front Porch: 195 sq. ft. (unheated)
    Rear Porch: 98 sq. ft. (unheated)

    HPG-600B, HPG-600, HPG-800, HPG-800-2, HPG-800B,HPG-1000

    Looking for a Basement foundation version of this plan? See house plan HPG-800

     

    Check out these cottage house plans from House Plan Gallery.

    All of our house plans include the following:

    Cover Sheet Showing architectural rendering of residence

    Floor Plan(s) In general, each house plan set includes floor plans at 1/4" scale with a door and window schedule. Floor plans are typically drawn with 4" exterior walls. However, some plans may have details/sections for both 2"x4" and 2"x6" wall framing. Please see "Exterior Wall Framing" specification above for availability.

    Foundation Plan and Details Electrical Plan with electrical symbols legend: In general, each house plan set includes an electrical plan which will show the locations of lights, receptacles, switches, etc.

    Roof Drainage Plan In general each house plan set may include a roof drainage plan which will show the layouts of all roof sections/planes.

    Exterior Elevations In general, each house plan set includes all applicable front, sides and rear elevations, as well as any special exterior details.

    Interior Elevations Where applicable, each house plan set includes relevant interior elevations, including cabinets, cabinet details, columns and walls with unique conditions.

    Single Use License Unless you buy a multi-use license you may only build one home from a set of plans. Plans cannot be re-sold or transferred.

    We can modify this house plan to fit your EXACT needs!  

    To get started, we can provide you with a 100% FREE No-Obligation modifications quote.

    Just click on the link below to fill out our quick & easy online form and let us know exactly what modifications you'd like done, and we'll email over your free quote within 1-2 business days!

    Get started by CLICKING HERE

    Customer Reviews

    Based on 3 reviews Write a review

    You'll Receive Your House Plans FAST!  Order a PDF or CAD file today, and we will email your house plans today! 

    Order a printed plan package (1 Set, 5 Set, or Reproducible), and we'll print and ship your plans today as well (typically 3-5 days to receive via UPS)!

    Upgrade to expedited shipping for even faster delivery to your front door!  

    Customer Reviews

    Based on 3 reviews
    100%
    (3)
    0%
    (0)
    0%
    (0)
    0%
    (0)
    0%
    (0)
    R
    Reggie B.
    Very satisfied!

    We use this site all the time to find plans for our customers. Very satisfied!

    S
    Scott S.
    Great company for designing your dream house plans!

    Great company for designing your dream house plans! I picked out a set of plans and asked that they be modified. They did it without issue and had them ready in no time!

    N
    Nicole M.
    Their customer service and turn-around time was outstanding!

    We had a wonderful experience with House Plan Gallery! They had several house plans to choose from, and we were able to make revisions in order to tweak the plan to just what we were looking for. Their customer service and turn-around time was outstanding! We are happy to be in our new home, and thankful that House Plan Gallery was part of our house building journey!