HPG-964 - The Morgan - House Plan Gallery
HPG-964 - The Morgan - House Plan Gallery
HPG-964 - The Morgan - House Plan Gallery

Like this plan, but need some modifications?



View Answers to Frequently Asked Questions

HPG-964 - The Morgan

Base Price:
$800.00
  • Regular price $1,200.00 $800.00 On Sale

    Click the "Add to Cart" button to review your order.

    You're making a very smart decision to choose a House Plan Gallery plan!


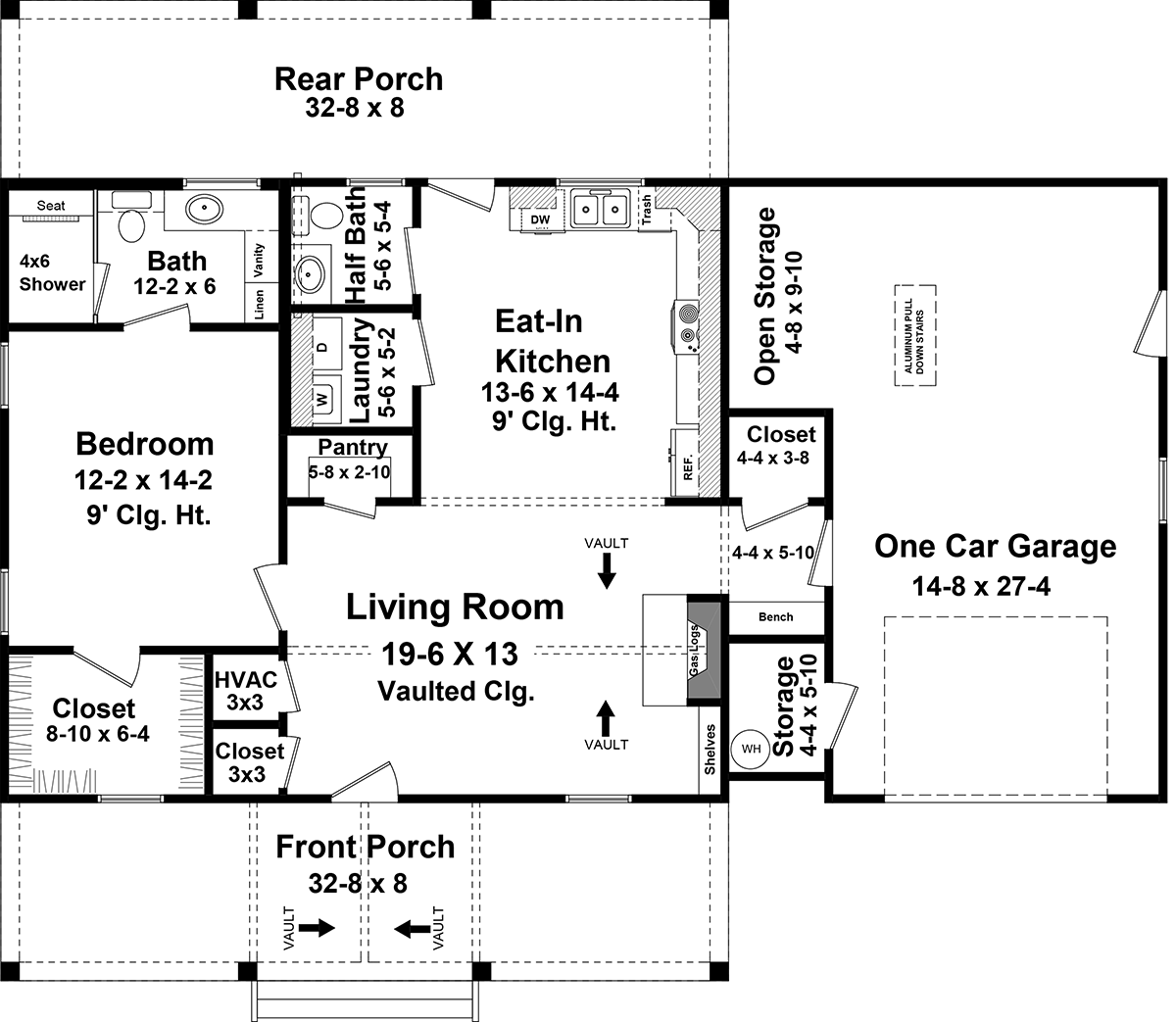
    Bedrooms: 1 / Baths: 1.5

    Living Sq. Ft.: 964

    Width: 52' - 4" / Depth: 44' - 0"

    Architectural style(s):
    Farmhouse / Country / Cottage / Ranch

    This 964-square-foot home combines rustic charm with modern functionality, making it ideal for singles, couples, or as a vacation retreat. The inviting front porch spans 32 feet, offering a perfect spot to relax and enjoy the outdoors. A one-car garage and additional storage enhance practicality and convenience.

    Inside, vaulted ceilings in the living room create a bright, airy atmosphere, complemented by a cozy wood-burning fireplace. The eat-in kitchen boasts ample counter space, a walk-in pantry, and convenient access to a half bath and laundry area. The bedroom serves as a tranquil retreat, featuring a spacious closet and an en-suite bathroom with a luxurious 4x6 shower and built-in seat.

    The rear porch provides a peaceful outdoor living space, while an open storage area adds versatility. Thoughtfully designed for comfort and efficiency, this home plan offers timeless appeal and functionality, making it perfect for any lifestyle.

    Foundation Type(s) Available:
    Slab or Crawlspace / Walkout Basement (see plan HPG-945)

    Levels: 1    Garage: Yes       Wall type: 2x4
    Exterior finish:  Siding    Bonus Room:  No

    =======

    Designer Comments:
    First Floor: 964 sq. ft. (living)
    Front Porch: 261 sq. ft. (unheated)
    Rear Porch: 261 sq. ft. (unheated)
    Garage: 497 sq. ft. (unheated)

    Total Sq Ft (heated + unheated): 1,983

    Like this plan, but want a Walkout Basement foundation?  Checkout plan HPG-945

    Related Plans

    HPG-915,  HPG-872, HPG-800B, HPG-800-2, HPG-600, HPG-600B, HPG-1000, HPG-1002

     

    Check out other 2 bedroom houseplans from House Plan Gallery.

     

    All of our house plans include the following:

    Cover Sheet Showing architectural rendering of residence

    Floor Plan(s) In general, each house plan set includes floor plans at 1/4" scale with a door and window schedule. Floor plans are typically drawn with 4" exterior walls. However, some plans may have details/sections for both 2"x4" and 2"x6" wall framing. Please see "Exterior Wall Framing" specification above for availability.

    Foundation Plan and Details Electrical Plan with electrical symbols legend: In general, each house plan set includes an electrical plan which will show the locations of lights, receptacles, switches, etc.

    Roof Drainage Plan In general each house plan set may include a roof drainage plan which will show the layouts of all roof sections/planes.

    Exterior Elevations In general, each house plan set includes all applicable front, sides and rear elevations, as well as any special exterior details.

    Interior Elevations Where applicable, each house plan set includes relevant interior elevations, including cabinets, cabinet details, columns and walls with unique conditions.

    Single Use License Unless you buy a multi-use license you may only build one home from a set of plans. Plans cannot be re-sold or transferred.

    We can modify this house plan to fit your EXACT needs!  

    To get started, we can provide you with a 100% FREE No-Obligation modifications quote.

    Just click on the link below to fill out our quick & easy online form and let us know exactly what modifications you'd like done, and we'll email over your free quote within 1-2 business days!

    Get started by CLICKING HERE

    You'll Receive Your House Plans FAST!  Order a PDF or CAD file today, and we will email your house plans today! 

    Order a printed plan package (1 Set, 5 Set, or Reproducible), and we'll print and ship your plans today as well (typically 3-5 days to receive via UPS)!

    Upgrade to expedited shipping for even faster delivery to your front door!  

    Customer Reviews

    Be the first to write a review
    0%
    (0)
    0%
    (0)
    0%
    (0)
    0%
    (0)
    0%
    (0)