HPG - 2410N - 1: The Whispering Oaks - House Plan Gallery
HPG - 2410N - 1: The Whispering Oaks - House Plan Gallery
HPG - 2410N - 1: The Whispering Oaks - House Plan Gallery
HPG - 2410N - 1: The Whispering Oaks - House Plan Gallery

Like this plan, but need some modifications?



View Answers to Frequently Asked Questions

HPG-2410N-1: The Whispering Oaks

Base Price:
$1,250.00
  • Regular price $1,600.00 $1,250.00 On Sale

    Click the "Add to Cart" button to review your order.

    You're making a very smart decision to choose a House Plan Gallery plan!


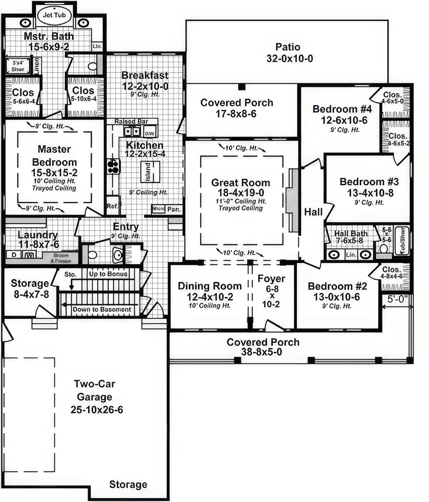
    Bedrooms: 4 / Baths: 2.5

    Living Sq. Ft.: 2410

    Width: 65' - 2"  Depth: 79' - 0"

    Architectural style(s):
    Country / Farmhouse / Traditional

    This charming country-style home combines timeless curb appeal with a layout designed for comfort and convenience. A wide front porch welcomes you into a spacious foyer flanked by a formal dining room and a hallway leading to the guest and secondary bedrooms. The heart of the home features a large great room with trayed ceiling, fireplace, and seamless flow into the kitchen and breakfast nook. The kitchen offers a pantry, raised bar, and ample cabinetry.

    Tucked privately in its own wing, the master suite boasts dual walk-in closets, a luxurious spa bath with jet tub and separate shower, and direct access to the laundry room. Three additional bedrooms and two full baths provide space for family or guests. A rear covered porch and patio create an ideal setting for outdoor living. With a two-car garage, storage areas, and an unfinished bonus room upstairs, this plan blends functionality and Southern elegance.

    Foundation Type(s) Available:
    Basement

    Levels: 1.5   Garage: Yes       Wall type: 2x6

    Exterior finish: Stone / Siding Bonus Room: Yes

    =======

    Designer Comments:
    First Floor: 2410 sq. ft. (living)
    Bonus Room: 442 sq. ft. (living)
    Front Porch: 223 sq. ft. (unheated)
    Rear Porch: 150 sq. ft. (unheated)
    Garage / Storage: 912 sq. ft. (unheated)

    HPG-2204, HPG-2255, HPG-2402, HPG-2336, HPG-2510, HPG-2570, HPG-2393, HPG-2410

    Looking for a Crawlspace / Slab foundation version of this plan? See house plan HPG-2393

     

    Check out these best house plans from House Plan Gallery.

    All of our house plans include the following:

    Cover Sheet Showing architectural rendering of residence

    Floor Plan(s) In general, each house plan set includes floor plans at 1/4" scale with a door and window schedule. Floor plans are typically drawn with 4" exterior walls. However, some plans may have details/sections for both 2"x4" and 2"x6" wall framing. Please see "Exterior Wall Framing" specification above for availability.

    Foundation Plan and Details Electrical Plan with electrical symbols legend: In general, each house plan set includes an electrical plan which will show the locations of lights, receptacles, switches, etc.

    Roof Drainage Plan In general each house plan set may include a roof drainage plan which will show the layouts of all roof sections/planes.

    Exterior Elevations In general, each house plan set includes all applicable front, sides and rear elevations, as well as any special exterior details.

    Interior Elevations Where applicable, each house plan set includes relevant interior elevations, including cabinets, cabinet details, columns and walls with unique conditions.

    Single Use License Unless you buy a multi-use license you may only build one home from a set of plans. Plans cannot be re-sold or transferred.

    We can modify this house plan to fit your EXACT needs!  

    To get started, we can provide you with a 100% FREE No-Obligation modifications quote.

    Just click on the link below to fill out our quick & easy online form and let us know exactly what modifications you'd like done, and we'll email over your free quote within 1-2 business days!

    Get started by CLICKING HERE

    Customer Reviews

    Based on 4 reviews Write a review

    You'll Receive Your House Plans FAST!  Order a PDF or CAD file today, and we will email your house plans today! 

    Order a printed plan package (1 Set, 5 Set, or Reproducible), and we'll print and ship your plans today as well (typically 3-5 days to receive via UPS)!

    Upgrade to expedited shipping for even faster delivery to your front door!  

    Customer Reviews

    Be the first to write a review
    0%
    (0)
    0%
    (0)
    0%
    (0)
    0%
    (0)
    0%
    (0)