HPG-2447-1: The Morgan Lane - House Plan Gallery
HPG-2447-1: The Morgan Lane - House Plan Gallery
HPG-2447-1: The Morgan Lane - House Plan Gallery
HPG-2447-1: The Morgan Lane - House Plan Gallery
HPG-2447-1: The Morgan Lane - House Plan Gallery

Like this plan, but need some modifications?



View Answers to Frequently Asked Questions

HPG-2447-1: The Morgan Lane

Base Price:
$1,250.00
  • Regular price $1,600.00 $1,250.00 On Sale

    Click the "Add to Cart" button to review your order.

    You're making a very smart decision to choose a House Plan Gallery plan!


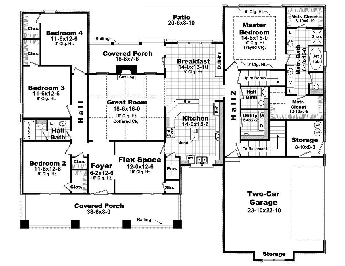
    Bedrooms: 4 / Baths: 2.5

    Living Sq. Ft.: 2447

    Width: 73' - 6"  Depth: 62' - 0"

    Architectural style(s):
    Country / Craftsman

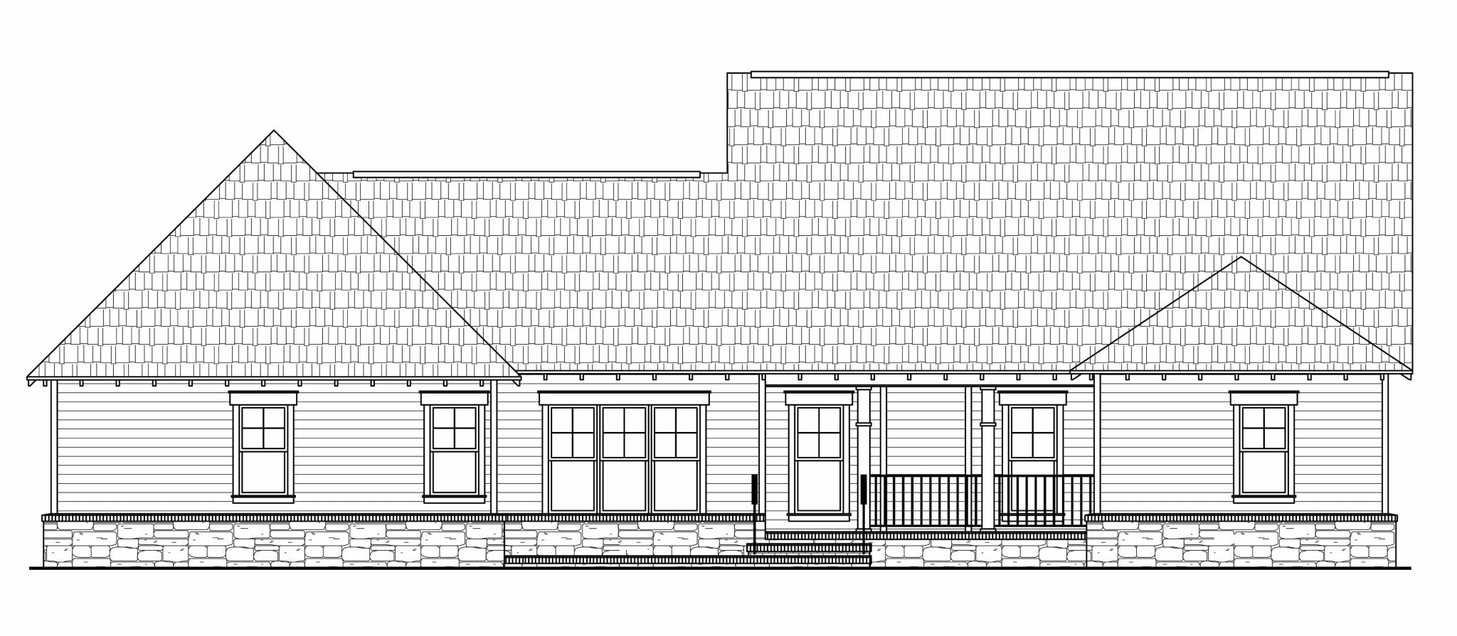
    This charming craftsman-style home delivers classic curb appeal with spacious, family-focused design. A wide front porch with columns welcomes you inside to a flexible floor plan featuring four bedrooms, three full baths, and a dedicated flex space perfect for a home office or formal sitting room. The coffered ceiling in the great room adds elegance, while the open-concept kitchen includes a large island, walk-in pantry, and direct access to the breakfast nook and covered rear porch.

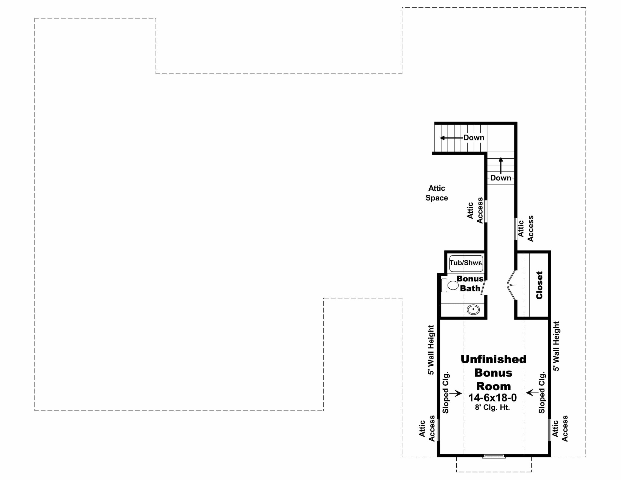
    The split-bedroom layout ensures privacy, with a luxurious master suite offering dual walk-in closets, a spa-like bath with a soaking tub, walk-in shower, and private access to the laundry room. Bedrooms 3 and 4 share a hall bath, while Bedroom 2 is conveniently located near the foyer. Upstairs, an unfinished bonus room with a full bath adds future potential for guests, a media room, or game space. This plan offers the perfect blend of style, function, and comfort.

    Foundation Type(s) Available:
    Basement

    Levels: 1.5   Garage: Yes       Wall type: 2x4

    Exterior finish: Siding / Stone Bonus Room: Yes

    =======

    Designer Comments:
    First Floor: 2447 sq. ft. (living)
    Bonus Room: 436 sq. ft. (living)
    Front Porch: 308 sq. ft. (unheated)
    Rear Porch: 129 sq. ft. (unheated)
    Garage / Storage: 773 sq. ft. (unheated)

    HPG-2400-2, HPG-2067, HPG-2108, HPG-2007, HPG-2060, HPG-20002

    Looking for a Crawlspace / Slab foundation version of this plan? See house plan HPG-2400-2

    No video currently available.

     

    Check out north carolina house plans from House Plan Gallery.

    All of our house plans include the following:

    Cover Sheet Showing architectural rendering of residence

    Floor Plan(s) In general, each house plan set includes floor plans at 1/4" scale with a door and window schedule. Floor plans are typically drawn with 4" exterior walls. However, some plans may have details/sections for both 2"x4" and 2"x6" wall framing. Please see "Exterior Wall Framing" specification above for availability.

    Foundation Plan and Details Electrical Plan with electrical symbols legend: In general, each house plan set includes an electrical plan which will show the locations of lights, receptacles, switches, etc.

    Roof Drainage Plan In general each house plan set may include a roof drainage plan which will show the layouts of all roof sections/planes.

    Exterior Elevations In general, each house plan set includes all applicable front, sides and rear elevations, as well as any special exterior details.

    Interior Elevations Where applicable, each house plan set includes relevant interior elevations, including cabinets, cabinet details, columns and walls with unique conditions.

    Single Use License Unless you buy a multi-use license you may only build one home from a set of plans. Plans cannot be re-sold or transferred.

    We can modify this house plan to fit your EXACT needs!  

    To get started, we can provide you with a 100% FREE No-Obligation modifications quote.

    Just click on the link below to fill out our quick & easy online form and let us know exactly what modifications you'd like done, and we'll email over your free quote within 1-2 business days!

    Get started by CLICKING HERE

    Customer Reviews

    Based on 2 reviews Write a review

    You'll Receive Your House Plans FAST!  Order a PDF or CAD file today, and we will email your house plans today! 

    Order a printed plan package (1 Set, 5 Set, or Reproducible), and we'll print and ship your plans today as well (typically 3-5 days to receive via UPS)!

    Upgrade to expedited shipping for even faster delivery to your front door!  

    Customer Reviews

    Based on 2 reviews
    100%
    (2)
    0%
    (0)
    0%
    (0)
    0%
    (0)
    0%
    (0)
    H
    Hope & Dave R.
    We still feel the excitement every time we unlock the door

    We purchased a beautiful country lot on May 8th 2009, and our home was completed February 8th, 2010. As we watched the house being built I kept telling my husband to "pinch me" this has to be a dream. We named our home CASA BELLA meaning house beautiful. We moved in February 19th, 2010, and we still feel the excitement every time we unlock the door...

    We would definitely recommend House Plan Gallery to anyone...

    S
    Stephen C.
    The plans were easy to read, detailed, and the layout was very practical with no wasted space?

    We are very happy with our house plans from House Plan Gallery. We literally viewed thousands of houseplans over several years and fell in love with the one we are building from House Plan Gallery.

    The plans were easy to read, detailed, and the layout was very practical with no wasted space.

    We would highly recommend House Plan Gallery to anyone looking for their next house plans!