HPG-2216-1: The Henderson Point - House Plan Gallery
HPG-2216-1: The Henderson Point - House Plan Gallery
HPG-2216-1: The Henderson Point - House Plan Gallery
HPG-2216-1: The Henderson Point - House Plan Gallery

Like this plan, but need some modifications?



View Answers to Frequently Asked Questions

HPG-2216-1: The Henderson Point

Base Price:
$1,250.00
  • Regular price $1,600.00 $1,250.00 On Sale

    Click the "Add to Cart" button to review your order.

    You're making a very smart decision to choose a House Plan Gallery plan!


    Bedrooms: 3 / Baths: 2.5

    Living Sq. Ft.: 2216

    Width: 70' - 6" / Depth: 69' - 0"

    Architectural style(s):
    Country / European / French Country / Traditional

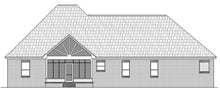
    Welcome home to this elegant and thoughtfully designed split-bedroom plan that blends comfort and functionality. A brick and siding façade with arched front doors and dormers adds charming curb appeal, while the interior offers a spacious layout perfect for modern living. The heart of the home is the great room with a trayed ceiling and cozy gas fireplace, opening to a gourmet kitchen with a center island, a pantry, and breakfast nook.

    The master suite features dual walk-in closets, a luxurious bathroom with a walk-in shower, double vanities, and a relaxing jet tub. Two additional bedrooms share a jack-and-jill bath, while a third full bath conveniently serves guests. A private office and a large laundry room with lockers add daily functionality. Enjoy the outdoors with a welcoming front porch, a rear covered porch, and a screened porch for seasonal comfort. A side-loading two-car garage and optional bonus room complete this versatile family home.

    Foundation Type(s) Available:
    Basement

    Levels: 1    Garage: Yes       Wall type: 2x4

    Exterior finish: Brick / Siding  Bonus Room: No

    =======

    Designer Comments:
    First Floor: 2216 sq. ft. (living)
    Front Porch: 138 sq. ft. (unheated)
    Rear Porch: 160 sq. ft. (unheated)
    Garage / Storage: 715 sq. ft. (unheated)

    HPG-2200B, HPG-2201, HPG-2251-3, HPG-2200

    Looking for a Crawlspace / Slab foundation version of this plan? See house plan HPG-2200B

     

    Check out these jack and jill bath plans to build from House Plan Gallery.

    All of our house plans include the following:

    Cover Sheet Showing architectural rendering of residence

    Floor Plan(s) In general, each house plan set includes floor plans at 1/4" scale with a door and window schedule. Floor plans are typically drawn with 4" exterior walls. However, some plans may have details/sections for both 2"x4" and 2"x6" wall framing. Please see "Exterior Wall Framing" specification above for availability.

    Foundation Plan and Details Electrical Plan with electrical symbols legend: In general, each house plan set includes an electrical plan which will show the locations of lights, receptacles, switches, etc.

    Roof Drainage Plan In general each house plan set may include a roof drainage plan which will show the layouts of all roof sections/planes.

    Exterior Elevations In general, each house plan set includes all applicable front, sides and rear elevations, as well as any special exterior details.

    Interior Elevations Where applicable, each house plan set includes relevant interior elevations, including cabinets, cabinet details, columns and walls with unique conditions.

    Single Use License Unless you buy a multi-use license you may only build one home from a set of plans. Plans cannot be re-sold or transferred.

    We can modify this house plan to fit your EXACT needs!  

    To get started, we can provide you with a 100% FREE No-Obligation modifications quote.

    Just click on the link below to fill out our quick & easy online form and let us know exactly what modifications you'd like done, and we'll email over your free quote within 1-2 business days!

    Get started by CLICKING HERE

    Customer Reviews

    Based on 1 review Write a review

    You'll Receive Your House Plans FAST!  Order a PDF or CAD file today, and we will email your house plans today! 

    Order a printed plan package (1 Set, 5 Set, or Reproducible), and we'll print and ship your plans today as well (typically 3-5 days to receive via UPS)!

    Upgrade to expedited shipping for even faster delivery to your front door!  

    Customer Reviews

    Based on 1 review
    100%
    (1)
    0%
    (0)
    0%
    (0)
    0%
    (0)
    0%
    (0)
    D
    Diane C.
    I'm a builder and have purchased from House Plan Gallery on many occasions.

    I'm a builder and have purchased from House Plan Gallery on many occasions. The process is very pleasant because the staff is professional and they serve your requirements quickly!