HPG-1639-1: The Timber Ridge - House Plan Gallery
HPG-1639-1: The Timber Ridge - House Plan Gallery
HPG-1639-1: The Timber Ridge - House Plan Gallery
HPG-1639-1: The Timber Ridge - House Plan Gallery
HPG-1639-1: The Timber Ridge - House Plan Gallery
HPG-1639-1: The Timber Ridge - House Plan Gallery
HPG-1639-1: The Timber Ridge - House Plan Gallery

Like this plan, but need some modifications?



View Answers to Frequently Asked Questions

HPG-1639-1: The Timber Ridge

Base Price:
$1,150.00
  • Regular price $1,500.00 $1,150.00 On Sale

    Click the "Add to Cart" button to review your order.

    You're making a very smart decision to choose a House Plan Gallery plan!


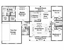
    Bedrooms: 3 / Baths: 2

    Living Sq. Ft.: 1639

    Width: 64' - 0" / Depth: 39' - 0"

    Architectural style(s):
    European / New England / Ranch / Traditional

    This beautiful one-story home combines classic charm with modern convenience, featuring an inviting brick exterior and a spacious front porch perfect for relaxing afternoons. With 1,639 sq. ft. of living space, this design includes three bedrooms and two bathrooms, making it an ideal choice for families or retirees looking for a comfortable, functional layout.

    The open-concept great room boasts a cozy fireplace and flows seamlessly into the kitchen and dining area, making entertaining a breeze. The well-appointed kitchen features a pantry and a center island for added prep space. A luxurious master suite offers a spa-like bath with a garden tub, separate shower, and dual walk-in closets.

    Outdoor living is enhanced with a rear covered porch, perfect for enjoying morning coffee or evening gatherings. A two-car garage provides ample storage, while the dedicated laundry room adds practicality. This home blends timeless appeal with smart design for today's lifestyle.

    Foundation Type(s) Available:
    Basement / Crawlspace / Slab

    Levels: 1    Garage: Yes       Wall type: 2x4
    Exterior finish:  Brick / Siding    Bonus Room:  No

    =======

    Designer Comments:
    First Floor: 1,639 sq. ft. (living)
    Front Porch: 92 sq. ft. (unheated)
    Rear Porch: 113 sq. ft. (unheated)
    Garage: 474 sq. ft. (unheated)

    No video currently available.

    All of our house plans include the following:

    Cover Sheet Showing architectural rendering of residence

    Floor Plan(s) In general, each house plan set includes floor plans at 1/4" scale with a door and window schedule. Floor plans are typically drawn with 4" exterior walls. However, some plans may have details/sections for both 2"x4" and 2"x6" wall framing. Please see "Exterior Wall Framing" specification above for availability.

    Foundation Plan and Details Electrical Plan with electrical symbols legend: In general, each house plan set includes an electrical plan which will show the locations of lights, receptacles, switches, etc.

    Roof Drainage Plan In general each house plan set may include a roof drainage plan which will show the layouts of all roof sections/planes.

    Exterior Elevations In general, each house plan set includes all applicable front, sides and rear elevations, as well as any special exterior details.

    Interior Elevations Where applicable, each house plan set includes relevant interior elevations, including cabinets, cabinet details, columns and walls with unique conditions.

    Single Use License Unless you buy a multi-use license you may only build one home from a set of plans. Plans cannot be re-sold or transferred.

    We can modify this house plan to fit your EXACT needs!  

    To get started, we can provide you with a 100% FREE No-Obligation modifications quote.

    Just click on the link below to fill out our quick & easy online form and let us know exactly what modifications you'd like done, and we'll email over your free quote within 1-2 business days!

    Get started by CLICKING HERE

    Customer Reviews

    Based on 5 reviews Write a review

    You'll Receive Your House Plans FAST!  Order a PDF or CAD file today, and we will email your house plans today! 

    Order a printed plan package (1 Set, 5 Set, or Reproducible), and we'll print and ship your plans today as well (typically 3-5 days to receive via UPS)!

    Upgrade to expedited shipping for even faster delivery to your front door!  

    Customer Reviews

    Based on 5 reviews
    100%
    (5)
    0%
    (0)
    0%
    (0)
    0%
    (0)
    0%
    (0)
    S
    Steve & Diane A.
    We would recommend this company highly!

    My husband and I decided to build a home and we visited several Internet sites and found this site to have a huge selection and at a great price. This company was wonderful with communication, efficiency, and options. We wanted to make a few changes to the plan and it was done politely and quickly. The website was easy to use and the plans and staff very professional. We would recommend this company highly. We are in the house now and it has proved to be exactly as hoped.

    D
    Dorothy B.
    It's good doing business with someone from my home state.

    Up to this point, I couldn't be happier.
    Met with the person who will be getting trusses, windows, etc. yesterday and he kept my set of plans for somebody else who will be helping us (had already given him a set) now I'll have to order one for myself.
    Hope Stephen is well. It's good doing business with someone from my home state.

    A
    Ashley S.
    They take customer service to the extreme to ensure 100% satisfaction

    In the fall of 2007 we were expecting our second daughter due in February 2008.

    We absolutely love the area and neighborhood we are in and had heard from a neighbor that the lot directly across the street was going to possibly be up for sale in the near future.

    We didn't think much about it, we loved our house and it was suiting us just fine as we were, but we knew when the new baby came we would certainly like to have more space.

    In January of 2008, the new baby girl was born and we thought we would start looking into the prospect of building in the coming fall. Unfortunately we all know 2008 did not end on a high note for the economy and more specifically the housing market. We decided it would be in our best interest to keep our land but look into building within 5 or so years. Then came 2010.

    I received a phone call from a friend of a friend. She told me she grew up in the house next door to us and really liked our neighborhood. She said she was told by our mutual friend we owned the land across the street and was curious if we had plans to build.

    I told her we hoped to one day, but weren't looking into anything too seriously at that point because houses were still not really selling at that time. She asked me if we would consider selling our home as they were very interested in living in the neighborhood and there were no other homes for sale at the time. I told her, with the right price, just about anything is for sale. Needless to say that went off without a hitch and we were off to live with my mom and begin our dream of building.

    We bought books and surfed the web day after day looking for house plans. We kept coming back to this one plan. It was in a couple of the books we looked at and on almost every website we looked at. We finally decided this was our house. It just needed a couple of modifications that would really make it ours. And then came House Plan Gallery.

    They responded to my email and asked me to describe in detail all of the modifications I wanted. They let me know I would be hearing from someone within a few days. But it wasn't a few days... It was one day!

    We further discussed the modifications and House Plan Gallery emailed me the cost and a sketch within the next day. It was absolutely PERFECT. It's very clear why our choice was House Plan Gallery .

    They take customer service to the extreme to ensure 100% satisfaction. I even received a call later after ordering asking how construction was going and just a simple hello and thank us for our order. Not many companies follow up quite like this anymore. I'm without a doubt a fan of the entire House Plan Gallery family.

    We are so very pleased with our home and would not hesitate to recommend or even use them again in the future. Thank you House Plan Gallery for making our dream home a reality!

    A
    Ashley P.
    We were very pleased.

    We modified our plans and they were very efficient in every step of the process. Great communication. We were very pleased.

    R
    Robyn R
    I highly recommend House Plan Gallery!

    After finding out how expensive it would be to use an architect to draw house plans, my husband and I decided to research house plans online. After many evenings of looking at plans from different companies, we found a Craftsman-style house plan on your website that we liked.

    From our initial contact with your company and through changes to the floor plans, you have been the best! Since we started building, multiple people (including several sub-contractors) have commented on the quality of the plans, including how complete the plans are and how accurate all the measurements have been.

    I highly recommend House Plan Gallery!