HPG-2418-1: The Brookhollow Lane - House Plan Gallery
HPG-2418-1: The Brookhollow Lane - House Plan Gallery
HPG-2418-1: The Brookhollow Lane - House Plan Gallery
HPG-2418-1: The Brookhollow Lane - House Plan Gallery

Like this plan, but need some modifications?



View Answers to Frequently Asked Questions

HPG-2418-1: The Brookhollow Lane

Base Price:
$1,250.00
  • Regular price $1,600.00 $1,250.00 On Sale

    Click the "Add to Cart" button to review your order.

    You're making a very smart decision to choose a House Plan Gallery plan!


    Bedrooms: 3 / Baths: 2.5

    Living Sq. Ft.: 2418

    Width: 68' - 0"  Depth: 72' - 10"

    Architectural style(s):
    Country / European / French Country / Traditional

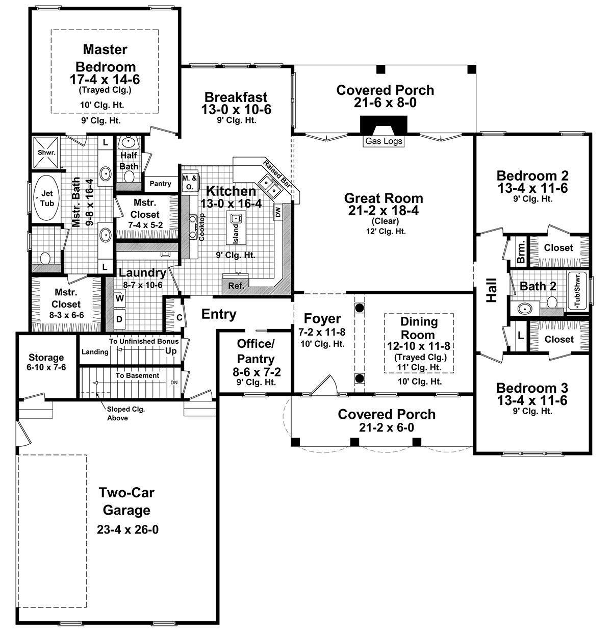
    This charming one-story brick home blends elegance and functionality with a family-focused layout. The inviting front porch and trio of dormer windows offer timeless curb appeal, while the spacious interior provides a seamless blend of openness and privacy. A vaulted great room with a 12-foot ceiling and fireplace anchors the heart of the home, flowing into a large kitchen with island seating, a pantry, and breakfast nook.

    The master suite is tucked privately at the rear and features a trayed ceiling, spa-like bath, and dual walk-in closets. Two additional bedrooms share a full bath on the opposite wing, while a dedicated office or pantry adds extra flexibility. Entertain in style in the formal dining room or relax outdoors on the covered back porch. A bonus room above the garage adds expansion potential for a guest suite or game room. With smart storage, a dedicated laundry area, and refined detailing, this plan offers lasting comfort and style.

    Foundation Type(s) Available:
    Basement

    Levels: 1.5   Garage: Yes       Wall type: 2x4

    Exterior finish: Brick / Siding Bonus Room: Yes

    =======

    Designer Comments:
    First Floor: 2418 sq. ft. (living)
    Bonus Room: 483 sq. ft. (living)
    Front Porch: 129 sq. ft. (unheated)
    Rear Porch: 161 sq. ft. (unheated)
    Garage / Storage: 739 sq. ft. (unheated)

    HPG-2401, HPG-2000-2, HPG-2000-2-3, HPG-2000B, HPG-2021, HPG-2021-3, HPG-2251-3, HPG-2001-3

    Looking for a Crawlspace / Slab foundation version of this plan? See house plan HPG-2401

    No video currently available.

    All of our house plans include the following:

    Cover Sheet Showing architectural rendering of residence

    Floor Plan(s) In general, each house plan set includes floor plans at 1/4" scale with a door and window schedule. Floor plans are typically drawn with 4" exterior walls. However, some plans may have details/sections for both 2"x4" and 2"x6" wall framing. Please see "Exterior Wall Framing" specification above for availability.

    Foundation Plan and Details Electrical Plan with electrical symbols legend: In general, each house plan set includes an electrical plan which will show the locations of lights, receptacles, switches, etc.

    Roof Drainage Plan In general each house plan set may include a roof drainage plan which will show the layouts of all roof sections/planes.

    Exterior Elevations In general, each house plan set includes all applicable front, sides and rear elevations, as well as any special exterior details.

    Interior Elevations Where applicable, each house plan set includes relevant interior elevations, including cabinets, cabinet details, columns and walls with unique conditions.

    Single Use License Unless you buy a multi-use license you may only build one home from a set of plans. Plans cannot be re-sold or transferred.

    We can modify this house plan to fit your EXACT needs!  

    To get started, we can provide you with a 100% FREE No-Obligation modifications quote.

    Just click on the link below to fill out our quick & easy online form and let us know exactly what modifications you'd like done, and we'll email over your free quote within 1-2 business days!

    Get started by CLICKING HERE

    Customer Reviews

    Based on 1 review Write a review

    You'll Receive Your House Plans FAST!  Order a PDF or CAD file today, and we will email your house plans today! 

    Order a printed plan package (1 Set, 5 Set, or Reproducible), and we'll print and ship your plans today as well (typically 3-5 days to receive via UPS)!

    Upgrade to expedited shipping for even faster delivery to your front door!  

    Customer Reviews

    Based on 1 review
    100%
    (1)
    0%
    (0)
    0%
    (0)
    0%
    (0)
    0%
    (0)
    B
    Bonnie L.
    Loved this company!

    Loved this company! Had a very good experience. So patient and understanding and really get what you want to do. Have Great input of their own. They were quick with responding back to me and made it so easy. I would recommend purchasing a plan from The House Plan Gallery to anyone!