HPG - 2060N - 1: The Brookhaven - House Plan Gallery
HPG - 2060N - 1: The Brookhaven - House Plan Gallery
HPG - 2060N - 1: The Brookhaven - House Plan Gallery
HPG - 2060N - 1: The Brookhaven - House Plan Gallery

Like this plan, but need some modifications?



View Answers to Frequently Asked Questions

HPG-2060N-1: The Brookhaven

Base Price:
$1,250.00
  • Regular price $1,600.00 $1,250.00 On Sale

    Click the "Add to Cart" button to review your order.

    You're making a very smart decision to choose a House Plan Gallery plan!


    Bedrooms: 3 / Baths: 2.5

    Living Sq. Ft.: 2060

    Width: 68' - 0" / Depth: 60' - 0"

    Architectural style(s):
    Country / European / French Country / Modern Farmhouse

    This beautiful 3-bedroom, 2.5-bath home combines timeless exterior design with a smart, family-friendly layout. The inviting front porch and elegant roofline provide classic curb appeal, while the open-concept floor plan delivers comfort and functionality. A vaulted great room with fireplace serves as the heart of the home, opening to a bright breakfast nook and well-equipped kitchen featuring a raised bar and walk-in pantry. The formal dining room offers an ideal setting for gatherings.

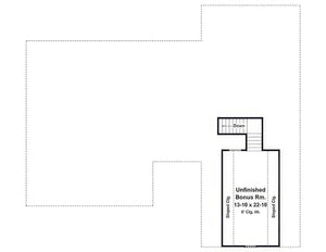
    The private master suite is tucked away with a tray ceiling, dual walk-in closets, and a luxurious bath complete with a jet tub, separate shower, and double vanities. Two additional bedrooms share a hall bath, and a convenient half bath is located near the laundry room. Outdoor living is encouraged with a spacious covered porch at the rear, while the upstairs bonus room provides flexible space for a playroom, home office, or guest suite.

    Foundation Type(s) Available:
    Basement / Crawlspace / Slab

    Levels: 1.5    Garage: Yes       Wall type: 2x4

    Exterior finish: Stone / Siding Bonus Room:  Yes

    =======

    Designer Comments:
    First Floor: 2060 sq. ft. (living)
    Bonus Room: 350 sq. ft. (living)
    Front Porch: 189 sq. ft. (unheated)
    Rear Porch: 129 sq. ft. (unheated)
    Garage / Storage: 744 sq. ft. (unheated)

    HPG-2007, HPG-1801, HPG-2005, HPG-2350, HPG-2202, HPG-3000, HPG-2060

    Looking for a Crawlspace / Slab foundation version of this plan? See house plan HPG-2007

    Looking for a Smaller version(s) of this plan? See house plan See house plan HPG-1863

     

     

    Check out this eplans from House Plan Gallery.

    All of our house plans include the following:

    Cover Sheet Showing architectural rendering of residence

    Floor Plan(s) In general, each house plan set includes floor plans at 1/4" scale with a door and window schedule. Floor plans are typically drawn with 4" exterior walls. However, some plans may have details/sections for both 2"x4" and 2"x6" wall framing. Please see "Exterior Wall Framing" specification above for availability.

    Foundation Plan and Details Electrical Plan with electrical symbols legend: In general, each house plan set includes an electrical plan which will show the locations of lights, receptacles, switches, etc.

    Roof Drainage Plan In general each house plan set may include a roof drainage plan which will show the layouts of all roof sections/planes.

    Exterior Elevations In general, each house plan set includes all applicable front, sides and rear elevations, as well as any special exterior details.

    Interior Elevations Where applicable, each house plan set includes relevant interior elevations, including cabinets, cabinet details, columns and walls with unique conditions.

    Single Use License Unless you buy a multi-use license you may only build one home from a set of plans. Plans cannot be re-sold or transferred.

    We can modify this house plan to fit your EXACT needs!  

    To get started, we can provide you with a 100% FREE No-Obligation modifications quote.

    Just click on the link below to fill out our quick & easy online form and let us know exactly what modifications you'd like done, and we'll email over your free quote within 1-2 business days!

    Get started by CLICKING HERE

    Customer Reviews

    Based on 4 reviews Write a review

    You'll Receive Your House Plans FAST!  Order a PDF or CAD file today, and we will email your house plans today! 

    Order a printed plan package (1 Set, 5 Set, or Reproducible), and we'll print and ship your plans today as well (typically 3-5 days to receive via UPS)!

    Upgrade to expedited shipping for even faster delivery to your front door!  

    Customer Reviews

    Be the first to write a review
    0%
    (0)
    0%
    (0)
    0%
    (0)
    0%
    (0)
    0%
    (0)