HPG-2004-1: The Hillsdale - House Plan Gallery
HPG-2004-1: The Hillsdale - House Plan Gallery
HPG-2004-1: The Hillsdale - House Plan Gallery
HPG-2004-1: The Hillsdale - House Plan Gallery

Like this plan, but need some modifications?



View Answers to Frequently Asked Questions

HPG-2004-1: The Hillsdale

Base Price:
$1,250.00
  • Regular price $1,600.00 $1,250.00 On Sale

    Click the "Add to Cart" button to review your order.

    You're making a very smart decision to choose a House Plan Gallery plan!


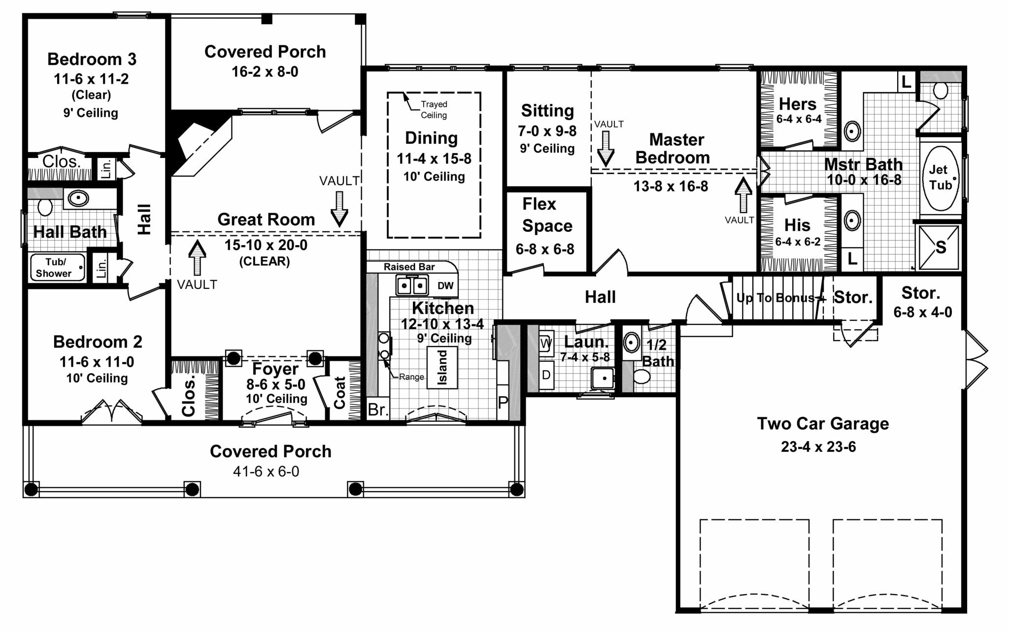
    Bedrooms: 3 / Baths: 2.5

    Living Sq. Ft.: 2004

    Width: 78' - 0" / Depth: 49' - 68"

    Architectural style(s):
    Cottage / Country / French Country / Southern

    This is a thoughtfully designed family home that blends comfort, functionality, and elegance. This spacious floor plan offers 3 bedrooms, 2.5 baths, and a bonus room perfect for future expansion or a guest suite. The open-concept Great Room flows seamlessly into the kitchen and dining area, creating an inviting space for gatherings. The master suite features a sitting area, his-and-hers closets, and a luxurious master bath complete with a jet tub and walk-in shower.

    The dedicated flex space offers versatility for a home office, playroom, or craft area. Enjoy outdoor living with a covered front porch and a rear covered porch ideal for entertaining. The upstairs bonus room with a future bath option expands the home’s potential. With ample storage, a spacious laundry room, and a two-car garage, this plan is perfect for growing families or those seeking a modern yet cozy home design.

    Foundation Type(s) Available:
    Crawlspace / Slab

    Levels: 1.5    Garage: Yes       Wall type: 2x4
    Exterior finish: Brick / Siding  Bonus Room:  Yes

    =======

    Designer Comments:
    First Floor: 2004 sq. ft. (living)
    Bonus Room: 354 sq. ft. (living)
    Front Porch: 249 sq. ft. (unheated)
    Rear Porch: 128 sq. ft. (unheated)
    Garage: 493 sq. ft. (unheated)
    Storage: 77 sq. ft. (unheated)

    HPG-2200, HPG-2008, HPG-1848, HPG-1799A, HPG-2100A, HPG-2505

    Looking for a Basement foundation version of this plan? See house plan HPG-2024B

    No video currently available.

     

    Check out traditional house plans for families from House Plan Gallery.

    All of our house plans include the following:

    Cover Sheet Showing architectural rendering of residence

    Floor Plan(s) In general, each house plan set includes floor plans at 1/4" scale with a door and window schedule. Floor plans are typically drawn with 4" exterior walls. However, some plans may have details/sections for both 2"x4" and 2"x6" wall framing. Please see "Exterior Wall Framing" specification above for availability.

    Foundation Plan and Details Electrical Plan with electrical symbols legend: In general, each house plan set includes an electrical plan which will show the locations of lights, receptacles, switches, etc.

    Roof Drainage Plan In general each house plan set may include a roof drainage plan which will show the layouts of all roof sections/planes.

    Exterior Elevations In general, each house plan set includes all applicable front, sides and rear elevations, as well as any special exterior details.

    Interior Elevations Where applicable, each house plan set includes relevant interior elevations, including cabinets, cabinet details, columns and walls with unique conditions.

    Single Use License Unless you buy a multi-use license you may only build one home from a set of plans. Plans cannot be re-sold or transferred.

    We can modify this house plan to fit your EXACT needs!  

    To get started, we can provide you with a 100% FREE No-Obligation modifications quote.

    Just click on the link below to fill out our quick & easy online form and let us know exactly what modifications you'd like done, and we'll email over your free quote within 1-2 business days!

    Get started by CLICKING HERE

    Customer Reviews

    Based on 2 reviews Write a review

    You'll Receive Your House Plans FAST!  Order a PDF or CAD file today, and we will email your house plans today! 

    Order a printed plan package (1 Set, 5 Set, or Reproducible), and we'll print and ship your plans today as well (typically 3-5 days to receive via UPS)!

    Upgrade to expedited shipping for even faster delivery to your front door!  

    Customer Reviews

    Based on 2 reviews
    100%
    (2)
    0%
    (0)
    0%
    (0)
    0%
    (0)
    0%
    (0)
    E
    Eddie B.
    If you need house plans, I would definitely recommend House Plan Gallery

    We looked for months and fell in love this house plan. After our purchase of the plans from House Plan Gallery, we made a few minor modifications to suit our special tastes. The modifications were a breeze. We truly enjoyed working with the plans and our builder. The plans have all the different elevation drawings so you can compare the house to the design. It is amazing how much the real house looks like the drawings and sketches. Some of our favorite features of this home design is the big dining area, the open floor plan, seperate sleeping areas, large bonus room, and double garage.

    House Plan Gallery's plans were easy to read, detailed, and provided a great value and lots of fun for us. If you need house plans, I would definately recommend House Plan Gallery..

    E
    Eddie B.
    If you need house plans, I would definitely recommend House Plan Gallery

    We looked for months and fell in love this house plan. After our purchase of the plans from House Plan Gallery, we made a few minor modifications to suit our special tastes. The modifications were a breeze. We truly enjoyed working with the plans and our builder. The plans have all the different elevation drawings so you can compare the house to the design. It is amazing how much the real house looks like the drawings and sketches. Some of our favorite features of this home design is the big dining area, the open floor plan, seperate sleeping areas, large bonus room, and double garage.

    House Plan Gallery's plans were easy to read, detailed, and provided a great value and lots of fun for us. If you need house plans, I would definately recommend House Plan Gallery..