HPG-2149B-1: The Sherwood Forest - House Plan Gallery
HPG-2149B-1: The Sherwood Forest - House Plan Gallery
HPG-2149B-1: The Sherwood Forest - House Plan Gallery
HPG-2149B-1: The Sherwood Forest - House Plan Gallery

Like this plan, but need some modifications?



View Answers to Frequently Asked Questions

HPG-2149B-1: The Sherwood Forest

Base Price:
$1,250.00
  • Regular price $1,600.00 $1,250.00 On Sale

    Click the "Add to Cart" button to review your order.

    You're making a very smart decision to choose a House Plan Gallery plan!


    Bedrooms: 3 / Baths: 2.5

    Living Sq. Ft.: 2149

    Width: 57' - 0" / Depth: 74' - 0"

    Architectural style(s):
    Country / Farmhouse / Ranch

    Welcome to the charm and comfort of this beautifully crafted farmhouse plan. Designed with family living in mind, this 3-bedroom, 2.5 bath home combines spacious open-concept living with smart functionality. The great room features a vaulted ceiling and gas log fireplace, creating a warm, inviting space that flows seamlessly into the island kitchen and light-filled eating area. The master suite is privately tucked away, complete with a tray ceiling, luxurious bath, and a large walk-in closet.

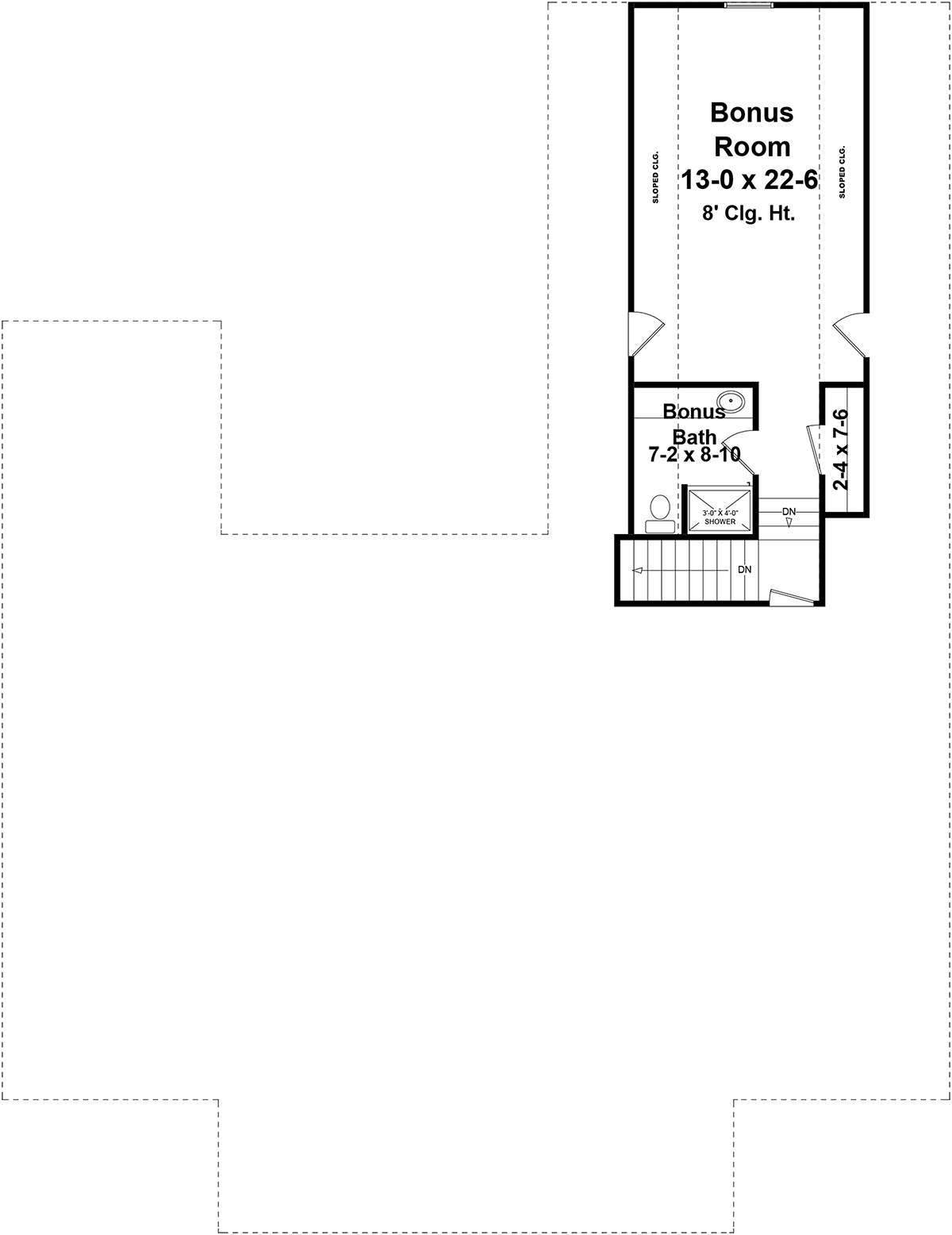
    Two additional bedrooms share a well-appointed hall bath, while a large upstairs bonus room with its own full bath offers endless flexibility—perfect as a fourth bedroom, guest suite, or home gym. A large rear covered porch extends your living space outdoors, ideal for relaxing or entertaining. The oversized garage includes built-in storage, and the generous laundry and pantry areas add everyday convenience. This home blends timeless style with thoughtful details to fit modern lifestyles.

    Foundation Type(s) Available:
    Walkout Basement

    Levels: 1.5    Garage: Yes       Wall type: 2x4

    Exterior finish: Brick / Siding Bonus Room:  Yes

    =======

    Designer Comments:
    First Floor: 2149 sq. ft. (living)
    Bonus Room: 429 sq. ft. (living)
    Front Porch: 248 sq. ft. (unheated)
    Rear Porch: 252 sq. ft. (unheated)
    Garage / Storage: 732 sq. ft. (unheated)

    To view the Slab/Crawlspace version of this plan, see house plan HPG-2107B.

    To view an alternate front version of this plan, see house plan HPG-2149

    Additional similar plans:

    HPG-2107B, HPG-2204, HPG-2393, HPG-2402, HPG-2336, HPG-2510, HPG-2570

     

    Check out these farmhouse plans from House Plan Gallery.

    All of our house plans include the following:

    Cover Sheet Showing architectural rendering of residence

    Floor Plan(s) In general, each house plan set includes floor plans at 1/4" scale with a door and window schedule. Floor plans are typically drawn with 4" exterior walls. However, some plans may have details/sections for both 2"x4" and 2"x6" wall framing. Please see "Exterior Wall Framing" specification above for availability.

    Foundation Plan and Details Electrical Plan with electrical symbols legend: In general, each house plan set includes an electrical plan which will show the locations of lights, receptacles, switches, etc.

    Roof Drainage Plan In general each house plan set may include a roof drainage plan which will show the layouts of all roof sections/planes.

    Exterior Elevations In general, each house plan set includes all applicable front, sides and rear elevations, as well as any special exterior details.

    Interior Elevations Where applicable, each house plan set includes relevant interior elevations, including cabinets, cabinet details, columns and walls with unique conditions.

    Single Use License Unless you buy a multi-use license you may only build one home from a set of plans. Plans cannot be re-sold or transferred.

    We can modify this house plan to fit your EXACT needs!  

    To get started, we can provide you with a 100% FREE No-Obligation modifications quote.

    Just click on the link below to fill out our quick & easy online form and let us know exactly what modifications you'd like done, and we'll email over your free quote within 1-2 business days!

    Get started by CLICKING HERE

    Customer Reviews

    Based on 4 reviews Write a review

    You'll Receive Your House Plans FAST!  Order a PDF or CAD file today, and we will email your house plans today! 

    Order a printed plan package (1 Set, 5 Set, or Reproducible), and we'll print and ship your plans today as well (typically 3-5 days to receive via UPS)!

    Upgrade to expedited shipping for even faster delivery to your front door!  

    Customer Reviews

    Based on 4 reviews
    100%
    (4)
    0%
    (0)
    0%
    (0)
    0%
    (0)
    0%
    (0)
    G
    Gina G.
    We love the house!

    We love the house!

    G
    Gary B.
    The home turned out beautifully!

    The home turned out beautifully! I would like to thank you and your staff for the tremendous help they gave me when I first started this project. Future homes that I may build will be from your plans!

    M
    Marty M.
    Great customer service!

    Great customer service!

    C
    Chapel Hill, North Carolina
    Very professional staff!

    Very professional staff, easy to work with, and speedy service!