HPG - 2252N - 1: The Wildrose Creek - House Plan Gallery
HPG - 2252N - 1: The Wildrose Creek - House Plan Gallery
HPG - 2252N - 1: The Wildrose Creek - House Plan Gallery
HPG - 2252N - 1: The Wildrose Creek - House Plan Gallery

Like this plan, but need some modifications?



View Answers to Frequently Asked Questions

HPG-2252N-1: The Wildrose Creek

Base Price:
$1,250.00
  • Regular price $1,600.00 $1,250.00 On Sale

    Click the "Add to Cart" button to review your order.

    You're making a very smart decision to choose a House Plan Gallery plan!


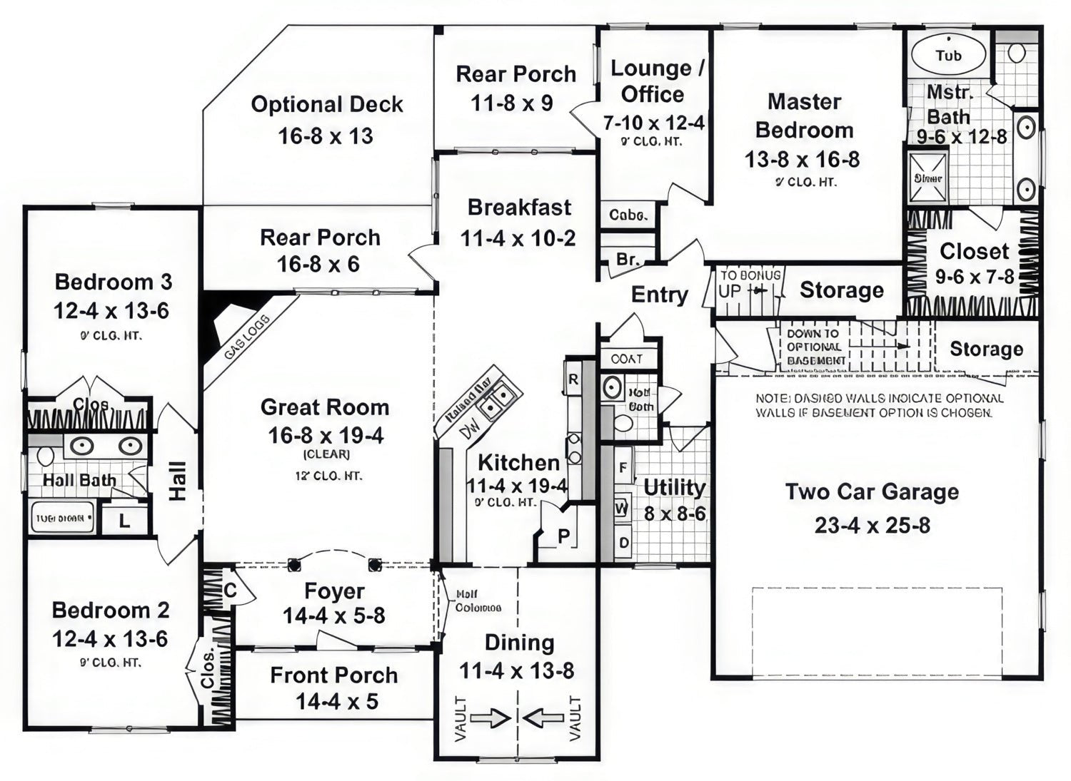
    Bedrooms: 3 / Baths: 2.5

    Living Sq. Ft.: 2251

    Width: 73' - 8"  Depth: 53' - 2"

    Architectural style(s):
    Craftsman / Farmhouse / French Country / Ranch

    This elegant ranch-style home blends timeless curb appeal with a thoughtful floor plan designed for modern living. The inviting exterior showcases charming arched windows, a welcoming front porch, and a two-car garage with abundant storage. Inside, the heart of the home is the expansive great room with a soaring 12’ ceiling, fireplace, and seamless flow into the kitchen and breakfast area. The gourmet kitchen features a large island, raised bar, and nearby formal dining room, making entertaining effortless.

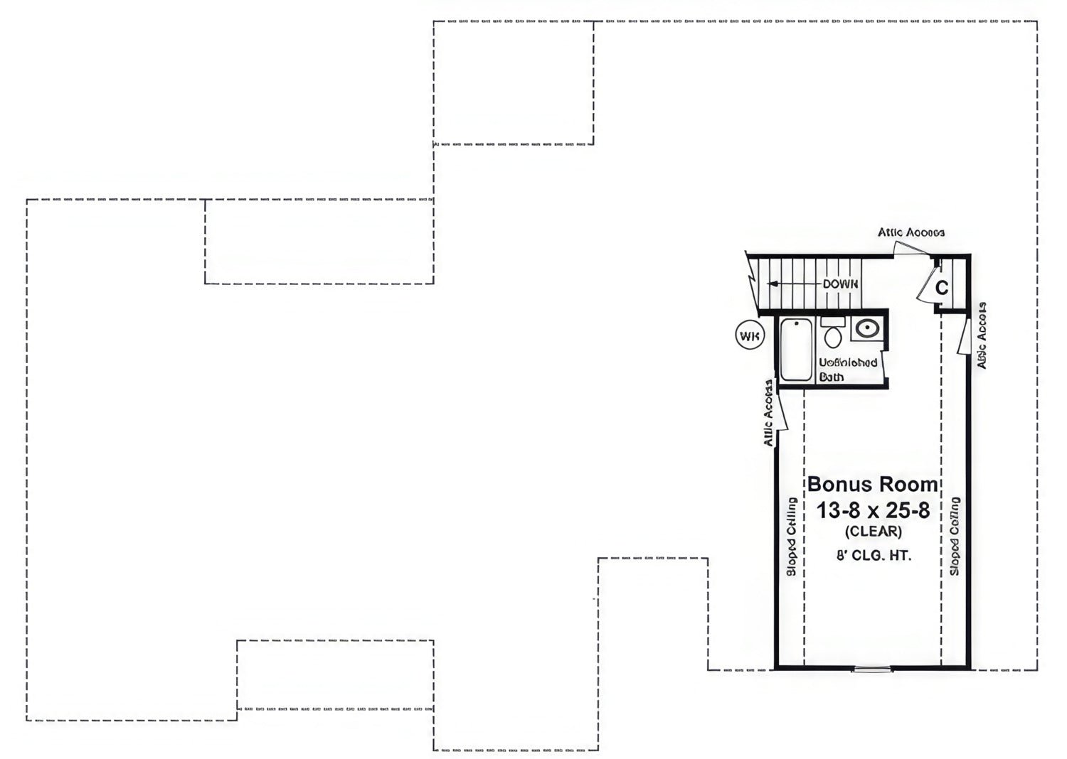
    The split-bedroom design ensures privacy, with the spacious master suite offering a spa-like bath with dual vanities, a soaking tub, separate shower, and a large walk-in closet. Two additional bedrooms share a hall bath, while a flexible lounge/office provides options for work or relaxation. Outdoor living shines with dual rear porches and an optional deck, perfect for gatherings. An upstairs bonus room with bath expands possibilities for a guest suite, media room, or hobby space.

    Foundation Type(s) Available:
    Basement / Crawlspace / Slab

    Levels: 1.5    Garage: Yes       Wall type: 2x4

    Exterior finish: Stone / Siding Bonus Room: Yes

    =======

    Designer Comments:
    First Floor: 2251 sq. ft. (living)
    Bonus Room: 452 sq. ft. (living)
    Front Porch: 72 sq. ft. (unheated)
    Rear Porch: 105 sq. ft. (unheated)
    Garage: 618 sq. ft. (unheated)
    Storage: 32 sq. ft. (unheated)

     

    Check out these houseplans with pictures from House Plan Gallery.

    All of our house plans include the following:

    Cover Sheet Showing architectural rendering of residence

    Floor Plan(s) In general, each house plan set includes floor plans at 1/4" scale with a door and window schedule. Floor plans are typically drawn with 4" exterior walls. However, some plans may have details/sections for both 2"x4" and 2"x6" wall framing. Please see "Exterior Wall Framing" specification above for availability.

    Foundation Plan and Details Electrical Plan with electrical symbols legend: In general, each house plan set includes an electrical plan which will show the locations of lights, receptacles, switches, etc.

    Roof Drainage Plan In general each house plan set may include a roof drainage plan which will show the layouts of all roof sections/planes.

    Exterior Elevations In general, each house plan set includes all applicable front, sides and rear elevations, as well as any special exterior details.

    Interior Elevations Where applicable, each house plan set includes relevant interior elevations, including cabinets, cabinet details, columns and walls with unique conditions.

    Single Use License Unless you buy a multi-use license you may only build one home from a set of plans. Plans cannot be re-sold or transferred.

    We can modify this house plan to fit your EXACT needs!  

    To get started, we can provide you with a 100% FREE No-Obligation modifications quote.

    Just click on the link below to fill out our quick & easy online form and let us know exactly what modifications you'd like done, and we'll email over your free quote within 1-2 business days!

    Get started by CLICKING HERE

    Customer Reviews

    Based on 4 reviews Write a review

    You'll Receive Your House Plans FAST!  Order a PDF or CAD file today, and we will email your house plans today! 

    Order a printed plan package (1 Set, 5 Set, or Reproducible), and we'll print and ship your plans today as well (typically 3-5 days to receive via UPS)!

    Upgrade to expedited shipping for even faster delivery to your front door!  

    Customer Reviews

    Be the first to write a review
    0%
    (0)
    0%
    (0)
    0%
    (0)
    0%
    (0)
    0%
    (0)