HPG-2138-1: The Jefferson - House Plan Gallery
HPG-2138-1: The Jefferson - House Plan Gallery
HPG-2138-1: The Jefferson - House Plan Gallery
HPG-2138-1: The Jefferson - House Plan Gallery

Like this plan, but need some modifications?



View Answers to Frequently Asked Questions

HPG-2138-1: The Jefferson

Base Price:
$1,250.00
  • Regular price $1,600.00 $1,250.00 On Sale

    Click the "Add to Cart" button to review your order.

    You're making a very smart decision to choose a House Plan Gallery plan!


    Bedrooms: 3 / Baths: 3

    Living Sq. Ft.: 2138

    Width: 79' - 4" / Depth: 57' - 6"

    Architectural style(s):
    Country / Ranch / Southwestern

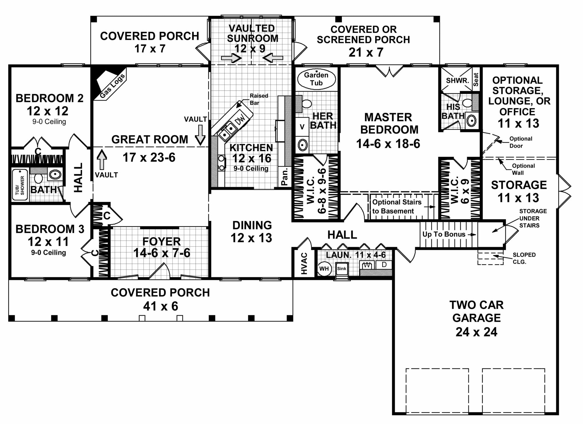
    This thoughtfully designed home plan blends spacious living with practical comfort, perfect for families who love to gather and entertain. The open-concept Great Room features vaulted ceilings and flows effortlessly into the kitchen and vaulted sunroom, creating a bright, inviting space for everyday living. The kitchen includes a large raised bar and a pantry, while the adjacent dining room provides ample space for formal meals.

    The luxurious master suite offers a private retreat with dual walk-in closets, a split "his and hers" bathroom layout, and private access to a covered or screened porch. Two generously sized secondary bedrooms share a full bath on the opposite side of the home for added privacy. A flexible office or lounge area offers additional functionality. Optional stairs to a basement and a spacious bonus room with built-ins above the garage provide room to grow. The large front and rear porches make outdoor living easy and enjoyable.

    Foundation Type(s) Available:
    Basement / Crawlspace / Slab

    Levels: 1.5    Garage: Yes       Wall type: 2x4

    Exterior finish: Brick / Siding / Stucco Bonus Room:  Yes

    =======

    Designer Comments:
    First Floor: 2138 sq. ft. (living)
    Bonus Room: 302 sq. ft. (living)
    Front Porch: 246 sq. ft. (unheated)
    Rear Porch: 265 sq. ft. (unheated)
    Garage: 570 sq. ft. (unheated)
    Storage: 294 sq. ft. (unheated)

    No video currently available.

     

    Check out this build your dream home podcast from House Plan Gallery.

    All of our house plans include the following:

    Cover Sheet Showing architectural rendering of residence

    Floor Plan(s) In general, each house plan set includes floor plans at 1/4" scale with a door and window schedule. Floor plans are typically drawn with 4" exterior walls. However, some plans may have details/sections for both 2"x4" and 2"x6" wall framing. Please see "Exterior Wall Framing" specification above for availability.

    Foundation Plan and Details Electrical Plan with electrical symbols legend: In general, each house plan set includes an electrical plan which will show the locations of lights, receptacles, switches, etc.

    Roof Drainage Plan In general each house plan set may include a roof drainage plan which will show the layouts of all roof sections/planes.

    Exterior Elevations In general, each house plan set includes all applicable front, sides and rear elevations, as well as any special exterior details.

    Interior Elevations Where applicable, each house plan set includes relevant interior elevations, including cabinets, cabinet details, columns and walls with unique conditions.

    Single Use License Unless you buy a multi-use license you may only build one home from a set of plans. Plans cannot be re-sold or transferred.

    We can modify this house plan to fit your EXACT needs!  

    To get started, we can provide you with a 100% FREE No-Obligation modifications quote.

    Just click on the link below to fill out our quick & easy online form and let us know exactly what modifications you'd like done, and we'll email over your free quote within 1-2 business days!

    Get started by CLICKING HERE

    Customer Reviews

    Based on 1 review Write a review

    You'll Receive Your House Plans FAST!  Order a PDF or CAD file today, and we will email your house plans today! 

    Order a printed plan package (1 Set, 5 Set, or Reproducible), and we'll print and ship your plans today as well (typically 3-5 days to receive via UPS)!

    Upgrade to expedited shipping for even faster delivery to your front door!  

    Customer Reviews

    Based on 1 review
    100%
    (1)
    0%
    (0)
    0%
    (0)
    0%
    (0)
    0%
    (0)
    R
    Robert G.
    My customers have always found a plan they loved.

    I have worked with House Plan Gallery on several prints for more than a year now, all with great success. My customers have always found a plan they loved.