HPG-2050-1: The Ridgely - House Plan Gallery
HPG-2050-1: The Ridgely - House Plan Gallery
HPG-2050-1: The Ridgely - House Plan Gallery

Like this plan, but need some modifications?



View Answers to Frequently Asked Questions

HPG-2050-1: The Ridgely

Base Price:
$1,250.00
  • Regular price $1,600.00 $1,250.00 On Sale

    Click the "Add to Cart" button to review your order.

    You're making a very smart decision to choose a House Plan Gallery plan!


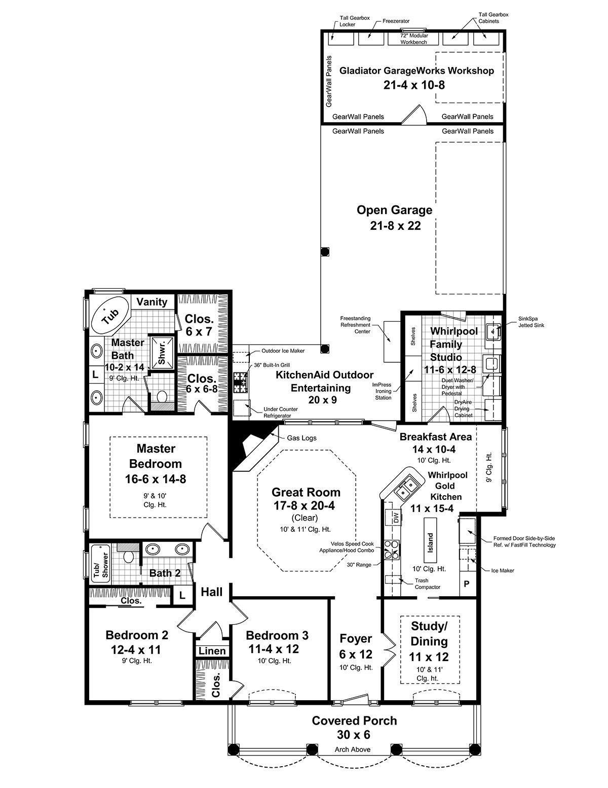
    Bedrooms: 3 / Baths: 2

    Living Sq. Ft.: 2050

    Width: 50' - 0" / Depth: 86' - 0"

    Architectural style(s):
    Colonial / Farmhouse / Ranch / Traditional

    This home is a stunning family home designed for comfort, entertaining, and modern living. This thoughtfully crafted floor plan offers 3 spacious bedrooms, 2 luxurious baths, and a versatile study/dining room perfect for remote work or formal dining.

    The heart of the home is the expansive Great Room, featuring a cozy gas log fireplace and seamless flow into the Whirlpool Gold Kitchen with premium appliances, ample counter space, and a functional island. The adjacent breakfast area opens to a covered outdoor entertaining space equipped with a built-in grill and outdoor kitchen—ideal for hosting family gatherings.

    The Master Suite is a peaceful retreat with a spacious bedroom, dual walk-in closets, and a spa-inspired bath featuring a whirlpool tub and walk-in shower. Additional highlights include a dedicated Whirlpool Family Studio, a Gladiator GarageWorks Workshop, and a spacious open garage. With thoughtful design and premium features throughout, this home blends style and functionality effortlessly.

    Foundation Type(s) Available:
    Crawlspace / Slab

    Levels: 1    Garage: Yes       Wall type: 2x6

    Exterior finish: Brick / Siding Bonus Room:  No

    =======

    Designer Comments:
    First Floor: 2050 sq. ft. (living)
    Front Porch: 180 sq. ft. (unheated)
    Garage / Rear Porch / Storage: 959 sq. ft. (unheated)

    No video currently available.

    All of our house plans include the following:

    Cover Sheet Showing architectural rendering of residence

    Floor Plan(s) In general, each house plan set includes floor plans at 1/4" scale with a door and window schedule. Floor plans are typically drawn with 4" exterior walls. However, some plans may have details/sections for both 2"x4" and 2"x6" wall framing. Please see "Exterior Wall Framing" specification above for availability.

    Foundation Plan and Details Electrical Plan with electrical symbols legend: In general, each house plan set includes an electrical plan which will show the locations of lights, receptacles, switches, etc.

    Roof Drainage Plan In general each house plan set may include a roof drainage plan which will show the layouts of all roof sections/planes.

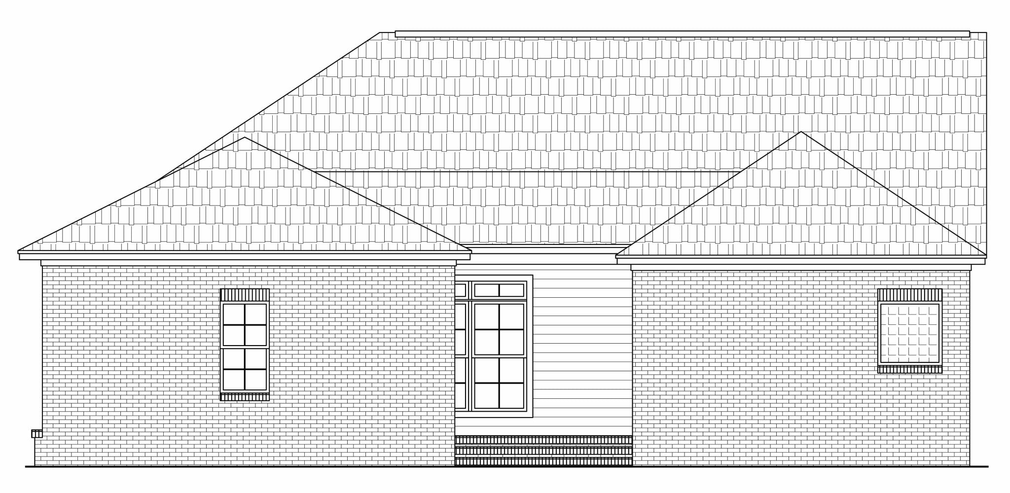
    Exterior Elevations In general, each house plan set includes all applicable front, sides and rear elevations, as well as any special exterior details.

    Interior Elevations Where applicable, each house plan set includes relevant interior elevations, including cabinets, cabinet details, columns and walls with unique conditions.

    Single Use License Unless you buy a multi-use license you may only build one home from a set of plans. Plans cannot be re-sold or transferred.

    We can modify this house plan to fit your EXACT needs!  

    To get started, we can provide you with a 100% FREE No-Obligation modifications quote.

    Just click on the link below to fill out our quick & easy online form and let us know exactly what modifications you'd like done, and we'll email over your free quote within 1-2 business days!

    Get started by CLICKING HERE

    Customer Reviews

    Based on 4 reviews Write a review

    You'll Receive Your House Plans FAST!  Order a PDF or CAD file today, and we will email your house plans today! 

    Order a printed plan package (1 Set, 5 Set, or Reproducible), and we'll print and ship your plans today as well (typically 3-5 days to receive via UPS)!

    Upgrade to expedited shipping for even faster delivery to your front door!  

    Customer Reviews

    Based on 4 reviews
    100%
    (4)
    0%
    (0)
    0%
    (0)
    0%
    (0)
    0%
    (0)
    G
    Geof & Jenny C.
    Thanks House Plan Gallery for a beautiful house plan, which has turned into a beautiful house, wh...

    My wife (Jenny) and I (Geof) had been living in the Lower Main Land of British Columbia (Canada). We enjoyed our work and our friends there but were really wanting to move back to North Western Alberta to own some land and enjoy the open spaces. My growing girls had always dreamed of having their own horses and this was something that was not going to happen in BC. I also longed to get back to hunting, quading, and snowmobiling, again things I'd not be able to afford in BC. A large draw was also to live closer, once again, to a favorite cousin who was one of my best friends--Robert. Robert had been a bachelor for many years and finally met the woman of his dreams. We were looking so forward to getting to know Robert and his new wife Katrin, as a couple.

    Tragically, six weeks after we had moved and three days short of their one year anniversary, Robert died in his sleep. We were devastated and wondered if we had made a mistake. We almost moved back to BC, because we didn't know how we could move forward, having had such a huge loss. Slowly the healing began to take hold and we started to think again about building our dream home. Robert's widow, Katrin, told us that one of Robert's last wishes that he expressed to her was that he wanted to sell a treasured piece of land to us.

    Robert and I grew up hunting, horseback riding, snowmobiling, and playing on this beautiful property. When Katrin told us she'd like to sell this land to us, we were moved to tears and happily bought it from her. Many years earlier, Robert had cleared out an area on this property that he hoped to eventually build a log cabin on. He started building the log cabin with large sruce trees that dominated the property. He never did complete it as he just got too busy farming, but he did move the logs to his residence, just in case he would have time to work on it further. Once he passed away and even before we knew what house plan we would build, we knew where we would build the house. It would be on the spot that Robert had always dreamed of building his log cabin.

    Jenny and I are not log cabin people, so that was never a question, but we wanted to somehow acknowledge Robert's dream for this part of the land. We have built our dream house and to top it off we plan to use some wood from Robert's half-built log cabin to make a mantle for our fireplace in our great room. Through our grief, the excellent design and assistance from House Plan Gallery to modify our plan has helped working through our loss a little more bearable. Many of Robert's friends and family members who have seen our house, have commented that Robert would have been so pleased to see what we've done with this property.

    When we found your plans, we knew we found what we were looking for... Some of our favorite features of this home design are the spacious great room, the beautiful dormer windows at the front which let in a lot of natural light, and an amazing master bedroom and suite.

    This house is not just our dream house, it is a memorial to an amazing godly man who was everyone's friend and whose influence is still being felt in so many people's lives to this day. Thanks House Plan Gallery for a beautiful house plan, which has turned into a beautiful house, which has become our home, which has brought a lot of peace and comfort...

    A
    Adam L.
    So far it has been the best thing I've ever done

    I had a chance to get something that I wanted, so I took it, and so far it has been the best thing I've ever done.

    It took us two years of planning, my wife and i must have gone over 3,000 house plans before we found the HPG-1638-1. We just "had to love it" because this house was going to be the first and last house we build.

    Some of my favorite features in the home include the big windows in the front of the house, the big garage, and the wonderful living room.

    I started building my home on January 8th, 2009, right around the time when I left for Iraq for the 2nd time. It took me a long time to get all of the paper work in line, just due to being in iraq, and well as you can guess, building a house was not fun from 6,000 miles away but my wife was up to the challenge.

    I did a lot of the building myself on R&R's from Iraq, just to save on some money and to be able to say that I helped build my home. The house is not yet done, but we should be moving into the house in about 6 weeks when i get back from Iraq, and my family can't wait for it.

    Building this house really brought my family together and we've become much closer. I have recommended House Plan Gallery to some friends, who have also got plans from them, and will be starting to build soon. I will recommend the guys at HousePlanGallery.com to anyone that wants to build their dream home....

    D
    Dorraine T.
    Thank you House Plan Gallery for playing a part in our dream. We absolutely love our new home!

    My husband & I began looking at floor plans of houses in November 2008. We had spent over 15 years in our older home, which already existed when we bought our property in 1994. As we watched the years pass, we would occasionally walk to the back of our 10 acres and discuss building a home one day. This was not only an American dream, but our dream, too.

    We had been through literally a couple hundred plans when I came across the House Plan Gallery on the internet. I emailed only one choice to my husband (who was away on an oilrig on a 14 day hitch). Immediately, he loved the house and the plans. When he arrived home many days later, he phoned the guys over at House Plan Gallery to inquire about the timing in ordering the plans. Much to our surprise, they responded that we could "just come by and pick them up". It turns out that their business was just across town!

    We absolutely love everything about this plan including the open floor plan, big porch, and overall curb appeal...

    After praying about the timing (economy) of building our new home, this was quite a sign! The plans were ordered February 5,2009, My neices' birthday. We have since then built our house and moved in on October 9, 2009, my fathers' birthday! Dates easily remembered!

    It's funny, after so many years in the older home we thought we would "miss" it, but after moving into our dream home, it's like we never lived anywhere else!

    Thank you House Plan Gallery for playing a part in our dream. We absolutely love our new home!

    K
    Keith C.
    House Plan Gallery was ready willing and able to make it happen.

    The staff at House Plan Gallery has been a pleasure to work with on designing the plans for our new home.

    Someone has been available to answer any and all questions that my wife and I have had, and House Plan Gallery made several relevant suggestions to us to help us through this process.

    My wife and I are contracting our house ourselves and House Plan Gallery has been there to help direct us on each phase. We did make several modifications to the original plan we selected, and House Plan Gallery was ready willing and able to make it happen.

    We would recommend House Plan Gallery without reservation.