HPG-2024-1: The Gabriel - House Plan Gallery
HPG-2024-1: The Gabriel - House Plan Gallery
HPG-2024-1: The Gabriel - House Plan Gallery
HPG-2024-1: The Gabriel - House Plan Gallery
HPG-2024-1: The Gabriel - House Plan Gallery

Like this plan, but need some modifications?



View Answers to Frequently Asked Questions

HPG-2024-1: The Gabriel

Base Price:
$1,250.00
  • Regular price $1,600.00 $1,250.00 On Sale

    Click the "Add to Cart" button to review your order.

    You're making a very smart decision to choose a House Plan Gallery plan!


    Bedrooms: 3 / Baths: 2

    Living Sq. Ft.: 2024

    Width: 72' - 10" / Depth: 41' - 0"

    Architectural style(s):
    Country / European / Traditional

    Welcome home to this thoughtfully designed 3-bedroom, 2 bathroom floor plan that perfectly blends comfort and functionality. The inviting covered porch leads into a spacious great room with vaulted ceilings and a cozy gas log fireplace. The open-concept kitchen features a large island, a pantry, and nearby breakfast nook, ideal for casual dining.

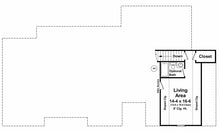
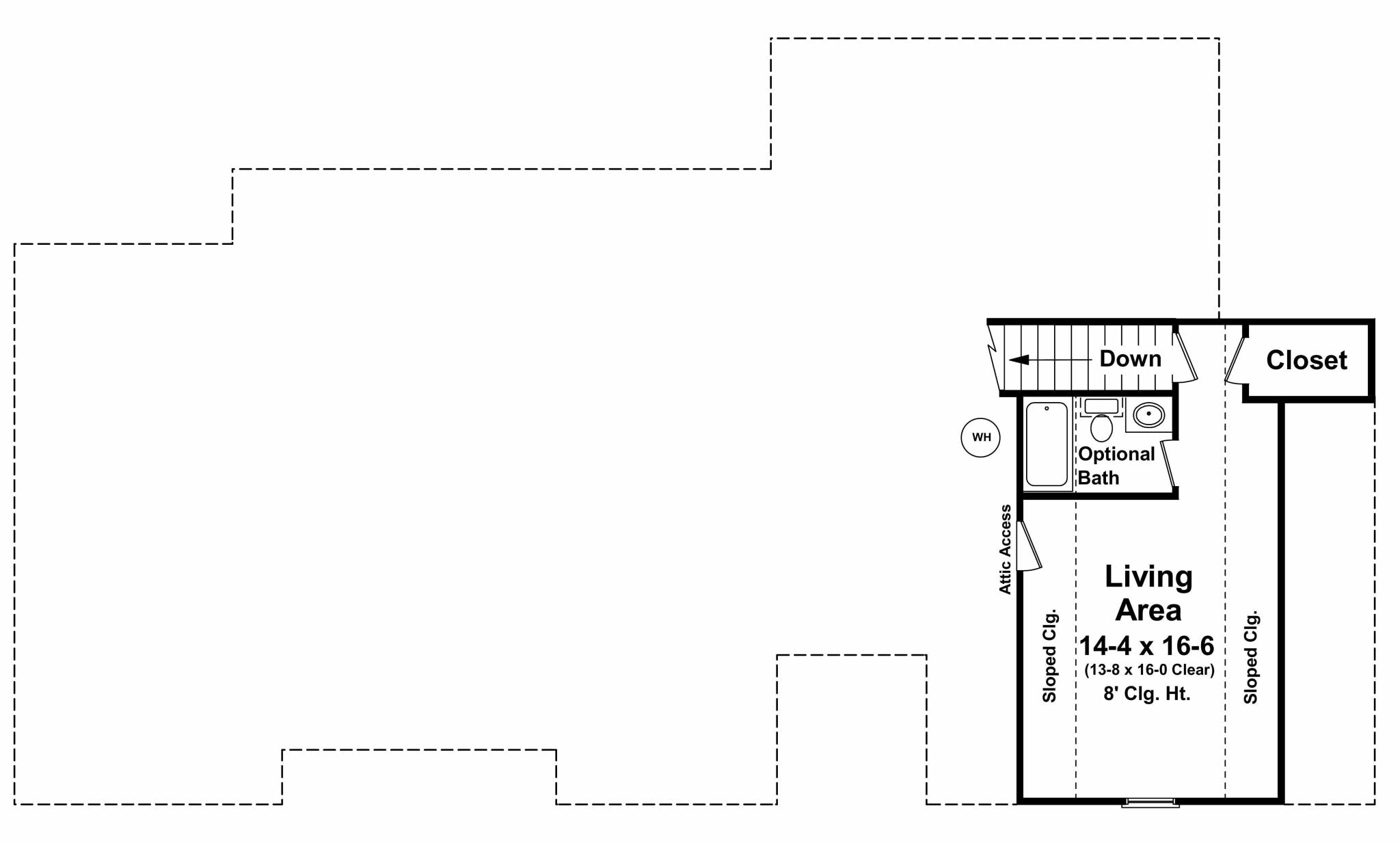
    The master suite offers a luxurious retreat with a spa-like bathroom that includes a soaking tub, walk-in shower, and dual vanities. Two additional bedrooms share a convenient full bath. A dedicated dining room and utility space add extra convenience. The upstairs bonus room provides flexibility for a home office, media room, or additional guest suite with an optional bathroom. There's even an optional basement layout for even more flexibility.

    Enjoy outdoor living on the expansive covered porch, perfect for entertaining. The two-car garage includes extra storage space for added functionality. This versatile home design offers both charm and practical living spaces for growing families or downsizers alike.

    Foundation Type(s) Available:
    Crawlspace / Slab / Walkout Basement

    Levels: 1.5    Garage: Yes       Wall type: 2x4
    Exterior finish: Brick / Siding / Stucco Bonus Room:  Yes

    =======

    Designer Comments:
    First Floor: 2024 sq. ft. (living)
    Bonus Room: 386 sq. ft. (living)
    Basement: 1700 sq. ft. (living)

    Front Porch: 73 sq. ft. (unheated)
    Rear Porch: 130 sq. ft. (unheated)
    Garage: 519 sq. ft. (unheated)
    Storage: 53 sq. ft. (unheated)

    No video currently available.

    All of our house plans include the following:

    Cover Sheet Showing architectural rendering of residence

    Floor Plan(s) In general, each house plan set includes floor plans at 1/4" scale with a door and window schedule. Floor plans are typically drawn with 4" exterior walls. However, some plans may have details/sections for both 2"x4" and 2"x6" wall framing. Please see "Exterior Wall Framing" specification above for availability.

    Foundation Plan and Details Electrical Plan with electrical symbols legend: In general, each house plan set includes an electrical plan which will show the locations of lights, receptacles, switches, etc.

    Roof Drainage Plan In general each house plan set may include a roof drainage plan which will show the layouts of all roof sections/planes.

    Exterior Elevations In general, each house plan set includes all applicable front, sides and rear elevations, as well as any special exterior details.

    Interior Elevations Where applicable, each house plan set includes relevant interior elevations, including cabinets, cabinet details, columns and walls with unique conditions.

    Single Use License Unless you buy a multi-use license you may only build one home from a set of plans. Plans cannot be re-sold or transferred.

    We can modify this house plan to fit your EXACT needs!  

    To get started, we can provide you with a 100% FREE No-Obligation modifications quote.

    Just click on the link below to fill out our quick & easy online form and let us know exactly what modifications you'd like done, and we'll email over your free quote within 1-2 business days!

    Get started by CLICKING HERE

    Customer Reviews

    Based on 1 review Write a review

    You'll Receive Your House Plans FAST!  Order a PDF or CAD file today, and we will email your house plans today! 

    Order a printed plan package (1 Set, 5 Set, or Reproducible), and we'll print and ship your plans today as well (typically 3-5 days to receive via UPS)!

    Upgrade to expedited shipping for even faster delivery to your front door!  

    Customer Reviews

    Based on 1 review
    100%
    (1)
    0%
    (0)
    0%
    (0)
    0%
    (0)
    0%
    (0)
    C
    Cindy G.
    Great company to work with!

    Great company to work with! We were able to buy the plans for the house we have always wanted. Great price, too!