HPG-1800C2-1: The Oak Shadow - House Plan Gallery
HPG-1800C2-1: The Oak Shadow - House Plan Gallery
HPG-1800C2-1: The Oak Shadow - House Plan Gallery
HPG-1800C2-1: The Oak Shadow - House Plan Gallery
HPG - 1800C2 - 1: The Oak Shadow - House Plan Gallery

Like this plan, but need some modifications?



View Answers to Frequently Asked Questions

HPG-1800C2-1: The Oak Shadow

Base Price:
$1,150.00
  • Regular price $1,500.00 $1,150.00 On Sale

    Click the "Add to Cart" button to review your order.

    You're making a very smart decision to choose a House Plan Gallery plan!


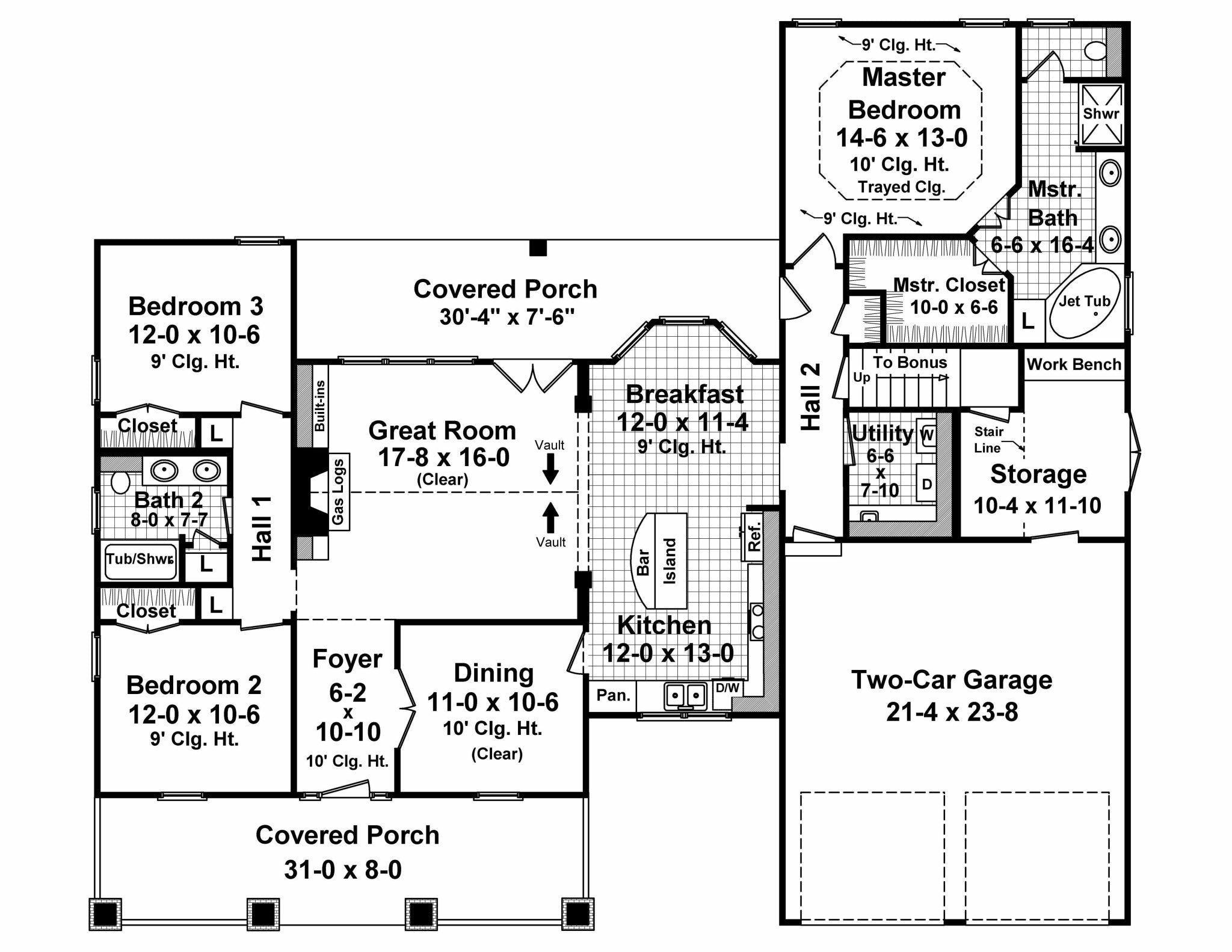
    Bedrooms: 3 / Baths: 2

    Living Sq. Ft.: 1800

    Width: 65' - 0" / Depth: 56' - 8"

    Architectural style(s):
    Country / Craftsman

    This charming Craftsman-style home offers a perfect blend of modern comfort and timeless curb appeal. The inviting front porch, accented with tapered columns and rustic wood details, sets the tone for this thoughtfully designed floor plan. Inside, the open-concept great room features vaulted ceilings and a cozy fireplace, seamlessly flowing into the kitchen and breakfast nook, making it ideal for family gatherings and entertaining.

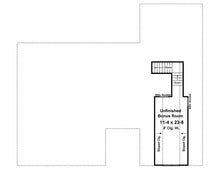
    The spacious master suite boasts a tray ceiling, a luxurious bath with a soaking tub, dual vanities, and a large walk-in closet. Two additional bedrooms share a full bath, while a flexible front room can serve as a home office or playroom. The covered rear porch extends living space outdoors, perfect for relaxing evenings. A two-car garage includes extra storage, and an unfinished bonus room offers future expansion opportunities. With its elegant design and practical layout, this home is a perfect retreat for any family.

    Foundation Type(s) Available:
    Crawlspace / Slab

    Levels: 1.5    Garage: Yes       Wall type: 2x4
    Exterior finish: Siding / Stone  Bonus Room:  Yes

    =======

    Designer Comments:
    First Floor: 1,800 sq. ft. (living)
    Bonus Room: 309 sq. ft. (living)
    Front Porch: 248 sq. ft. (unheated)
    Rear Porch: 211 sq. ft. (unheated)

    Garage / Shop: 679 sq. ft. (unheated)

    HPG-1800C-1, HPG-1800B, HPG-2400-2, HPG-2199

    Looking for a Basement foundation version of this plan? See house plan HPG-1816C-2

    No video currently available.

     

    Check out floor plans with bonus room from House Plan Gallery.

    All of our house plans include the following:

    Cover Sheet Showing architectural rendering of residence

    Floor Plan(s) In general, each house plan set includes floor plans at 1/4" scale with a door and window schedule. Floor plans are typically drawn with 4" exterior walls. However, some plans may have details/sections for both 2"x4" and 2"x6" wall framing. Please see "Exterior Wall Framing" specification above for availability.

    Foundation Plan and Details Electrical Plan with electrical symbols legend: In general, each house plan set includes an electrical plan which will show the locations of lights, receptacles, switches, etc.

    Roof Drainage Plan In general each house plan set may include a roof drainage plan which will show the layouts of all roof sections/planes.

    Exterior Elevations In general, each house plan set includes all applicable front, sides and rear elevations, as well as any special exterior details.

    Interior Elevations Where applicable, each house plan set includes relevant interior elevations, including cabinets, cabinet details, columns and walls with unique conditions.

    Single Use License Unless you buy a multi-use license you may only build one home from a set of plans. Plans cannot be re-sold or transferred.

    We can modify this house plan to fit your EXACT needs!  

    To get started, we can provide you with a 100% FREE No-Obligation modifications quote.

    Just click on the link below to fill out our quick & easy online form and let us know exactly what modifications you'd like done, and we'll email over your free quote within 1-2 business days!

    Get started by CLICKING HERE

    Customer Reviews

    Based on 7 reviews Write a review

    You'll Receive Your House Plans FAST!  Order a PDF or CAD file today, and we will email your house plans today! 

    Order a printed plan package (1 Set, 5 Set, or Reproducible), and we'll print and ship your plans today as well (typically 3-5 days to receive via UPS)!

    Upgrade to expedited shipping for even faster delivery to your front door!  

    Customer Reviews

    Based on 7 reviews
    100%
    (7)
    0%
    (0)
    0%
    (0)
    0%
    (0)
    0%
    (0)
    N
    Natalie W.
    We broke ground on our new home and found out we were expecting!

    We were planning to add to our family, and our current 3 bedroom home was already extremely cramped.

    We decided on plan HPG-1992-1 because we loved the different pitches in the roof and the open flow the plan offered, as well as the bonus room which makes a great bedroom and full bath for our teenage daughter.

    The land was in the process of being cleared when we found out that we were expecting daughter #3. We broke ground on our new home July 28 2010 and with an awesome contractor we were able to move in the week after Thanksgiving.

    We had just enough time to settle in to our new home, which we absolutely love, before we welcomed our youngest daughter into the family on February 11, 2011.

    I have always heard if a marriage can survive building a house, it can surive anything... well my husband will tell you that we not only survived building a house, but building a house while pregnant; now that is a great accomplishment!

    Thank you so much for providing a wonderful plan for our new home.

    A
    Amy S.
    Living in or new dream house now!

    Received my order quickly. Everything was in good condition. Excellent plans, had no issues using them at all! Easy to utilize the plans during the building process. Living in or new dream house now!

    S
    Shay M.
    We are so incredibly happy with our home and wouldn't have changed a thing!

    I would guess that my husband and I looked at about 50 different house plan books over the course of two years, and could never quite find what we was looking for. We were looking for something that was open and didn't have ANY wasted space.

    I was briefly searching the internet one day and I just happened to come across a house plan that was absolutely perfect. It was actually the first house plan that I had ever seen that I didn't have to make changes on. It had the open living room and kitchen that we were looking for and wasn't full of hall ways, which is wasted space for us.

    We are so incredibly happy with our home and wouldn't have changed a thing!

    Thank you House Plan Gallery!

    R
    Reggie B.
    Very satisfied!

    We use this site all the time to find plans for our customers. Very satisfied!

    J
    James and Amy M.
    Our experience with HPG was a home buyers dream

    Our experience with HPG was a home buyers dream. We found a plan we liked, made the adjustments that best fit our family, and never had a bad experience in the process.

    We have had people from our subdivision and others, as well as people from out of state, stop us in our yard to ask about the house and where we purchased our plan. Thank you for making the home building experience magnificent!