HPG-1570-1: The Pebble Creek - House Plan Gallery
HPG-1570-1: The Pebble Creek - House Plan Gallery
HPG-1570-1: The Pebble Creek - House Plan Gallery

Like this plan, but need some modifications?



View Answers to Frequently Asked Questions

HPG-1570-1: The Pebble Creek

Base Price:
$1,150.00
  • Regular price $1,500.00 $1,150.00 On Sale

    Click the "Add to Cart" button to review your order.

    You're making a very smart decision to choose a House Plan Gallery plan!


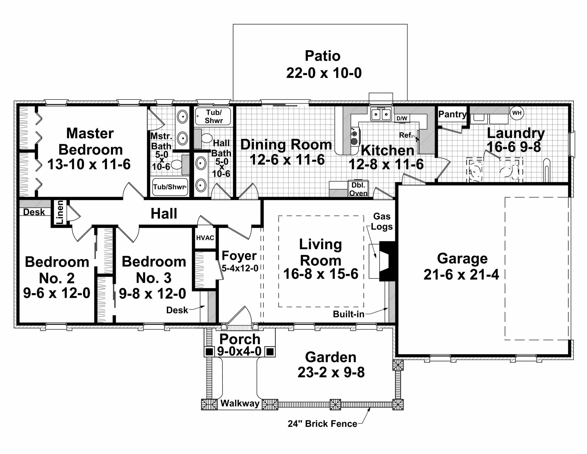
    Bedrooms: 3 / Baths: 2

    Living Sq. Ft.: 1570

    Width: 70' - 0" / Depth: 32' - 0"

    Architectural style(s):
    European / Ranch / Traditional

    This charming 3-bedroom, 2-bathroom home offers a perfect blend of style and practicality. The spacious master bedroom features an en-suite bath with a garden tub and a separate shower, along with a large walk-in closet. The two additional bedrooms are generously sized, with convenient access to a hall bath and a shared desk space, ideal for study or work.

    The heart of the home is the open living room, which flows seamlessly into the dining area and kitchen, creating an inviting space for entertaining. The kitchen is well-equipped with modern appliances, a pantry, and a raised bar, perfect for casual dining or meal prep. A built-in gas fireplace in the living room provides a cozy ambiance.

    Enjoy outdoor living with a covered patio and a lovely garden area, enclosed by a 24-inch brick fence. The two-car garage and laundry room provide ample storage and convenience, making this home a great choice for any family.

    Foundation Type(s) Available:
    Crawlspace / Slab

    Levels: 1    Garage: Yes       Wall type: 2x4
    Exterior finish:  Brick / Siding   Bonus Room:  No

    =======

    Designer Comments:
    First Floor: 1,570 sq. ft. (living)
    Front Porch: 56 sq. ft. (unheated)
    Garage: 478 sq. ft. (unheated)

    No video currently available.

     

    Check out unique craftsman houseplan from House Plan Gallery.

    All of our house plans include the following:

    Cover Sheet Showing architectural rendering of residence

    Floor Plan(s) In general, each house plan set includes floor plans at 1/4" scale with a door and window schedule. Floor plans are typically drawn with 4" exterior walls. However, some plans may have details/sections for both 2"x4" and 2"x6" wall framing. Please see "Exterior Wall Framing" specification above for availability.

    Foundation Plan and Details Electrical Plan with electrical symbols legend: In general, each house plan set includes an electrical plan which will show the locations of lights, receptacles, switches, etc.

    Roof Drainage Plan In general each house plan set may include a roof drainage plan which will show the layouts of all roof sections/planes.

    Exterior Elevations In general, each house plan set includes all applicable front, sides and rear elevations, as well as any special exterior details.

    Interior Elevations Where applicable, each house plan set includes relevant interior elevations, including cabinets, cabinet details, columns and walls with unique conditions.

    Single Use License Unless you buy a multi-use license you may only build one home from a set of plans. Plans cannot be re-sold or transferred.

    We can modify this house plan to fit your EXACT needs!  

    To get started, we can provide you with a 100% FREE No-Obligation modifications quote.

    Just click on the link below to fill out our quick & easy online form and let us know exactly what modifications you'd like done, and we'll email over your free quote within 1-2 business days!

    Get started by CLICKING HERE

    Customer Reviews

    Based on 3 reviews Write a review

    You'll Receive Your House Plans FAST!  Order a PDF or CAD file today, and we will email your house plans today! 

    Order a printed plan package (1 Set, 5 Set, or Reproducible), and we'll print and ship your plans today as well (typically 3-5 days to receive via UPS)!

    Upgrade to expedited shipping for even faster delivery to your front door!  

    Customer Reviews

    Based on 3 reviews
    100%
    (3)
    0%
    (0)
    0%
    (0)
    0%
    (0)
    0%
    (0)
    A
    Ashley C.
    Great Plans!

    Great Plans! We dealt over the phone and the customer service was excellent. We love our house!

    T
    Tim and Debbie C.
    Your plans are the true example of excellence

    Dear Friends,

    We got in early this morning to start sending the plans out for bidding and after reviewing the most recent modifications of HPG-19192-1, we felt we truly needed to take the time to write you this letter.

    Your team has been such a pleasure to work with and we are blown away with the excellence and thoroughness of the work that has been done. The specs on how we want our concrete done, the span of lumber charts, the details on the cabinets, etc., is unbelievable. Your plans are the true example of excellence. That is so rarely seen anymore in residential work or even commercial work anymore! Hold your heads up and puff up those chests share the love and kind words throughout your staff.

    A
    Adam L.
    So far it has been the best thing I've ever done

    I had a chance to get something that I wanted, so I took it, and so far it has been the best thing I've ever done.

    It took us two years of planning, my wife and i must have gone over 3,000 house plans before we found the HPG-1638-1. We just "had to love it" because this house was going to be the first and last house we build.

    Some of my favorite features in the home include the big windows in the front of the house, the big garage, and the wonderful living room.

    I started building my home on January 8th, 2009, right around the time when I left for Iraq for the 2nd time. It took me a long time to get all of the paper work in line, just due to being in iraq, and well as you can guess, building a house was not fun from 6,000 miles away but my wife was up to the challenge.

    I did a lot of the building myself on R&R's from Iraq, just to save on some money and to be able to say that I helped build my home. The house is not yet done, but we should be moving into the house in about 6 weeks when i get back from Iraq, and my family can't wait for it.

    Building this house really brought my family together and we've become much closer. I have recommended House Plan Gallery to some friends, who have also got plans from them, and will be starting to build soon. I will recommend the guys at HousePlanGallery.com to anyone that wants to build their dream home....