HPG-1502-1: The Oak Hollow - House Plan Gallery
HPG-1502-1: The Oak Hollow - House Plan Gallery
HPG-1502-1: The Oak Hollow - House Plan Gallery

Like this plan, but need some modifications?



View Answers to Frequently Asked Questions

HPG-1502-1: The Oak Hollow

Base Price:
$1,150.00
  • Regular price $1,500.00 $1,150.00 On Sale

    Click the "Add to Cart" button to review your order.

    You're making a very smart decision to choose a House Plan Gallery plan!


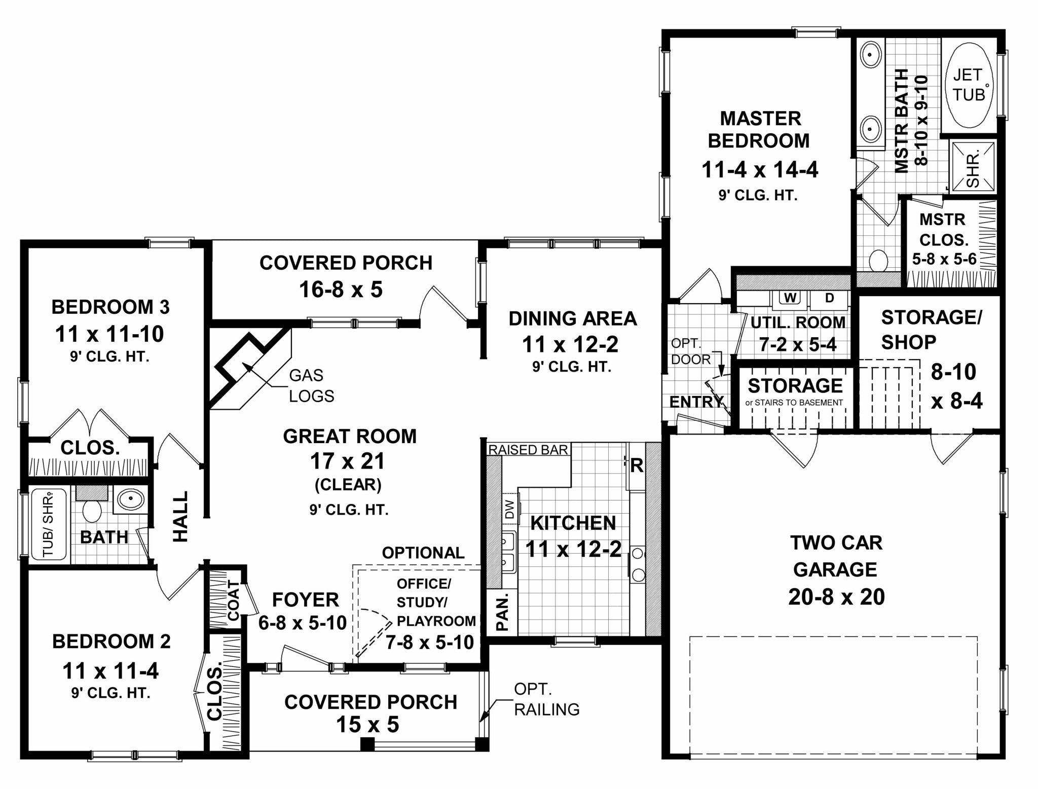
    Bedrooms: 3 / Baths: 2

    Living Sq. Ft.: 1502

    Width: 61' - 8" / Depth: 45' - 8"

    Architectural style(s):
    Cape Cod / Ranch / Traditional / Versatile

    This thoughtfully designed home plan offers a perfect balance of comfort and functionality with 3 spacious bedrooms and 2 bathrooms. The master suite features a large bedroom with a walk-in closet and a luxurious en-suite bath with a garden tub, offering a peaceful retreat. Bedrooms 2 and 3 are well-sized and share a convenient hall bath, making this home ideal for families or guests.

    The open-concept great room with vaulted ceilings and a cozy gas fireplace is the heart of the home, providing ample space for entertaining. The kitchen, complete with a raised bar and adjacent dining area, creates a seamless flow for everyday living and family meals.

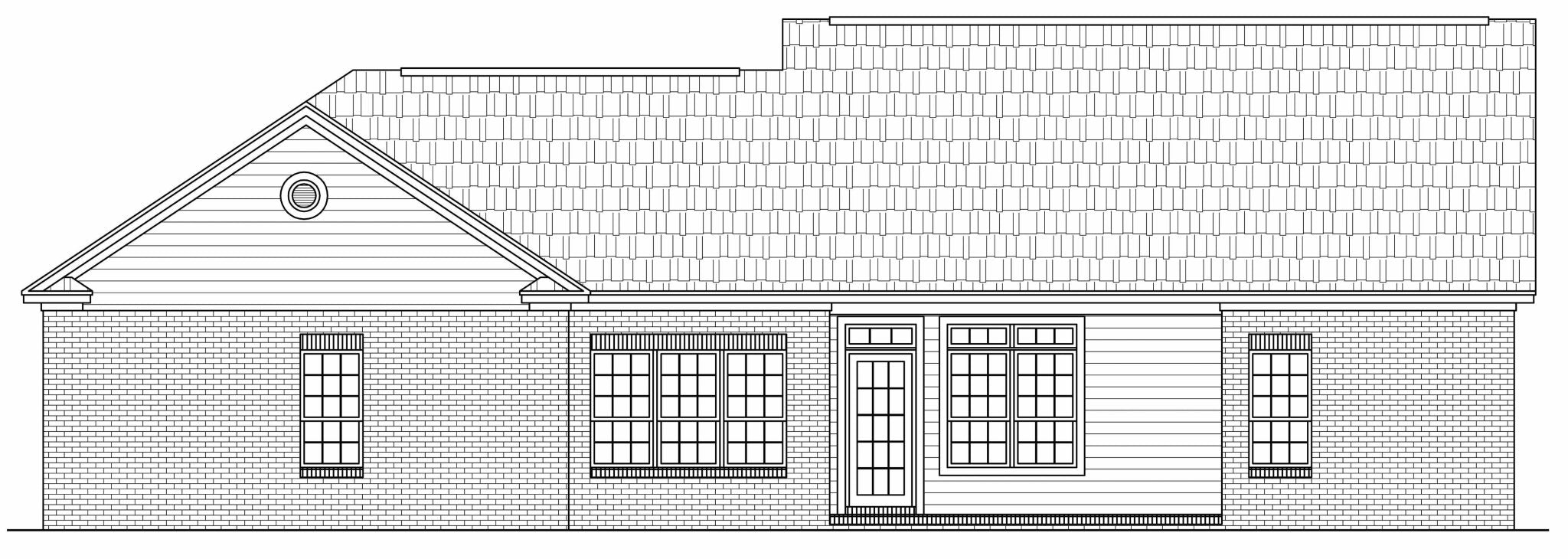
    Additional features include a two-car garage, an optional office/study, and generous storage space. Enjoy the outdoors with two covered porches, perfect for relaxation. With its charming brick and siding exterior, this home provides both beauty and practicality for modern living.

    Foundation Type(s) Available:
    Crawlspace / Slab / Walkout Basement

    Levels: 1    Garage: Yes       Wall type: 2x6
    Exterior finish:  Brick / Siding    Bonus Room:  No

    =======

    Designer Comments:
    First Floor: 1,502 sq. ft. (living)
    Front Porch: 75 sq. ft. (unheated)
    Rear Porch: 83 sq. ft. (unheated)
    Garage: 431 sq. ft. (unheated)
    Storage: 110 sq. ft. (unheated)

    No video currently available.

     

    Check out this horse barn plans with apartment from House Plan Gallery.

    All of our house plans include the following:

    Cover Sheet Showing architectural rendering of residence

    Floor Plan(s) In general, each house plan set includes floor plans at 1/4" scale with a door and window schedule. Floor plans are typically drawn with 4" exterior walls. However, some plans may have details/sections for both 2"x4" and 2"x6" wall framing. Please see "Exterior Wall Framing" specification above for availability.

    Foundation Plan and Details Electrical Plan with electrical symbols legend: In general, each house plan set includes an electrical plan which will show the locations of lights, receptacles, switches, etc.

    Roof Drainage Plan In general each house plan set may include a roof drainage plan which will show the layouts of all roof sections/planes.

    Exterior Elevations In general, each house plan set includes all applicable front, sides and rear elevations, as well as any special exterior details.

    Interior Elevations Where applicable, each house plan set includes relevant interior elevations, including cabinets, cabinet details, columns and walls with unique conditions.

    Single Use License Unless you buy a multi-use license you may only build one home from a set of plans. Plans cannot be re-sold or transferred.

    We can modify this house plan to fit your EXACT needs!  

    To get started, we can provide you with a 100% FREE No-Obligation modifications quote.

    Just click on the link below to fill out our quick & easy online form and let us know exactly what modifications you'd like done, and we'll email over your free quote within 1-2 business days!

    Get started by CLICKING HERE

    Customer Reviews

    Based on 1 review Write a review

    You'll Receive Your House Plans FAST!  Order a PDF or CAD file today, and we will email your house plans today! 

    Order a printed plan package (1 Set, 5 Set, or Reproducible), and we'll print and ship your plans today as well (typically 3-5 days to receive via UPS)!

    Upgrade to expedited shipping for even faster delivery to your front door!  

    Customer Reviews

    Based on 1 review
    100%
    (1)
    0%
    (0)
    0%
    (0)
    0%
    (0)
    0%
    (0)
    L
    Lottie B.
    We constantly receive compliments about how beautiful the home is

    I went online and found your house plans and loved them! We were looking to build something a little smaller, than the house we previously had, as we were moving from the gulf coast up to north Mississippi.

    When I found this plan, it was perfect for us. We constantly receive compliments about how beautiful the home is and how the floorplan is so well laid-out and utilizes every square inch of space.

    I really enjoyed building the home, and would recommend House Plan Gallery, wholeheartedly, to anyone looking for a beautiful, well-designed, and affordable home design...