HPG-1639N-1: The Hawthorn Creek
HPG - 1639N - 1: The Hawthorn Creek - House Plan Gallery
HPG - 1639N - 1: The Hawthorn Creek - House Plan Gallery

Like this plan, but need some modifications?



View Answers to Frequently Asked Questions

HPG-1639N-1: The Hawthorn Creek

Base Price:
$1,150.00
  • Regular price $1,500.00 $1,150.00 On Sale

    Click the "Add to Cart" button to review your order.

    You're making a very smart decision to choose a House Plan Gallery plan!


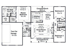
    Bedrooms: 3 / Baths: 2

    Living Sq. Ft.: 1639

    Width: 64' - 0" / Depth: 39' - 0"

    Architectural style(s):
    Modern Farmhouse / Country / Ranch

    This inviting farmhouse-inspired home blends timeless curb appeal with a highly functional, family-friendly layout. A welcoming covered front porch sets the tone, opening into a spacious great room with a dramatic vaulted ceiling and fireplace—perfect for everyday living or entertaining. The open kitchen features generous counter space, a pantry, and a seamless connection to the dining area, all overlooking a rear covered porch ideal for outdoor meals or quiet evenings.

    The private master suite is thoughtfully positioned away from secondary bedrooms and includes a well-appointed bath with a soaking tub, separate shower, dual vanities, and ample closet space. Two additional bedrooms share a convenient hall bath, making this plan ideal for families or guests. Practical touches like a dedicated laundry room, mudroom-style entry from the two-car garage, and abundant storage throughout enhance everyday comfort.

    Designed with simplicity, charm, and livability in mind, this home fits beautifully into a wide range of neighborhoods and lifestyles.

    Foundation Type(s) Available:
    Basement / Crawlspace / Slab

    Levels: 1    Garage: Yes       Wall type: 2x4
    Exterior finish:  Siding    Bonus Room:  No

    =======

    Designer Comments:
    First Floor: 1,639 sq. ft. (living)
    Front Porch: 92 sq. ft. (unheated)
    Rear Porch: 113 sq. ft. (unheated)
    Garage: 474 sq. ft. (unheated)

    All of our house plans include the following:

    Cover Sheet Showing architectural rendering of residence

    Floor Plan(s) In general, each house plan set includes floor plans at 1/4" scale with a door and window schedule. Floor plans are typically drawn with 4" exterior walls. However, some plans may have details/sections for both 2"x4" and 2"x6" wall framing. Please see "Exterior Wall Framing" specification above for availability.

    Foundation Plan and Details Electrical Plan with electrical symbols legend: In general, each house plan set includes an electrical plan which will show the locations of lights, receptacles, switches, etc.

    Roof Drainage Plan In general each house plan set may include a roof drainage plan which will show the layouts of all roof sections/planes.

    Exterior Elevations In general, each house plan set includes all applicable front, sides and rear elevations, as well as any special exterior details.

    Interior Elevations Where applicable, each house plan set includes relevant interior elevations, including cabinets, cabinet details, columns and walls with unique conditions.

    Single Use License Unless you buy a multi-use license you may only build one home from a set of plans. Plans cannot be re-sold or transferred.

    We can modify this house plan to fit your EXACT needs!  

    To get started, we can provide you with a 100% FREE No-Obligation modifications quote.

    Just click on the link below to fill out our quick & easy online form and let us know exactly what modifications you'd like done, and we'll email over your free quote within 1-2 business days!

    Get started by CLICKING HERE

    Customer Reviews

    Based on 5 reviews Write a review

    You'll Receive Your House Plans FAST!  Order a PDF or CAD file today, and we will email your house plans today! 

    Order a printed plan package (1 Set, 5 Set, or Reproducible), and we'll print and ship your plans today as well (typically 3-5 days to receive via UPS)!

    Upgrade to expedited shipping for even faster delivery to your front door!  

    Customer Reviews

    Be the first to write a review
    0%
    (0)
    0%
    (0)
    0%
    (0)
    0%
    (0)
    0%
    (0)