HPG-2436-1: Aspen Landing - House Plan Gallery
HPG-2436-1: Aspen Landing - House Plan Gallery
HPG-2436-1: Aspen Landing - House Plan Gallery

Like this plan, but need some modifications?



View Answers to Frequently Asked Questions

HPG-2436-1: Aspen Landing

Base Price:
$1,250.00
  • Regular price $1,600.00 $1,250.00 On Sale

    Click the "Add to Cart" button to review your order.

    You're making a very smart decision to choose a House Plan Gallery plan!


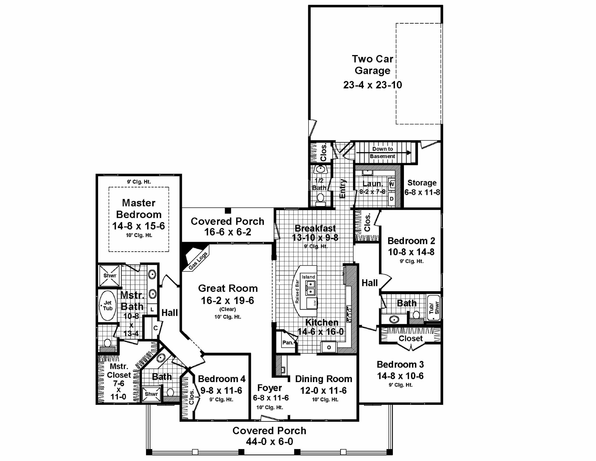
    Bedrooms: 4 / Baths: 3.5

    Living Sq. Ft.: 2436

    Width: 62' - 0"  Depth: 80' - 4"

    Architectural style(s):
    Country / Farmhouse / Traditional

    Welcome home to timeless charm and thoughtful design. This inviting 4-bedroom, 3.5-bath home blends classic Southern style with modern function. A wide front porch and elegant gables provide stunning curb appeal, while the layout is perfect for family living. Inside, the vaulted great room with gas fireplace opens to a spacious kitchen featuring a center island, walk-in pantry, and breakfast nook with patio access.

    The private master suite is a luxurious retreat with a large walk-in closet, dual vanities, jet tub, and separate shower. On the opposite side of the home, three secondary bedrooms offer ample space and share two full baths. Additional highlights include a formal dining room, large laundry/mudroom, half bath, built-in storage, and a generous two-car garage. A covered rear porch completes the home, ideal for outdoor entertaining. Whether you're raising a family or hosting guests, this plan offers comfort, flexibility, and Southern hospitality all under one roof.

    Foundation Type(s) Available:
    Basement

    Levels: 1   Garage: Yes       Wall type: 2x4

    Exterior finish: Brick / Siding Bonus Room: No

    =======

    Designer Comments:
    First Floor: 2436 sq. ft. (living)
    Front Porch: 300 sq. ft. (unheated)
    Rear Porch: 102 sq. ft. (unheated)
    Garage: 580 sq. ft. (unheated)
    Storage: 75 sq. ft. (unheated)

    HPG-2204, HPG-2336, HPG-2402

    Looking for a Crawlspace / Slab foundation version of this plan? See house plan HPG-2402

    No video currently available.

     

    Check out the house designers from House Plan Gallery.

    All of our house plans include the following:

    Cover Sheet Showing architectural rendering of residence

    Floor Plan(s) In general, each house plan set includes floor plans at 1/4" scale with a door and window schedule. Floor plans are typically drawn with 4" exterior walls. However, some plans may have details/sections for both 2"x4" and 2"x6" wall framing. Please see "Exterior Wall Framing" specification above for availability.

    Foundation Plan and Details Electrical Plan with electrical symbols legend: In general, each house plan set includes an electrical plan which will show the locations of lights, receptacles, switches, etc.

    Roof Drainage Plan In general each house plan set may include a roof drainage plan which will show the layouts of all roof sections/planes.

    Exterior Elevations In general, each house plan set includes all applicable front, sides and rear elevations, as well as any special exterior details.

    Interior Elevations Where applicable, each house plan set includes relevant interior elevations, including cabinets, cabinet details, columns and walls with unique conditions.

    Single Use License Unless you buy a multi-use license you may only build one home from a set of plans. Plans cannot be re-sold or transferred.

    We can modify this house plan to fit your EXACT needs!  

    To get started, we can provide you with a 100% FREE No-Obligation modifications quote.

    Just click on the link below to fill out our quick & easy online form and let us know exactly what modifications you'd like done, and we'll email over your free quote within 1-2 business days!

    Get started by CLICKING HERE

    Customer Reviews

    Based on 4 reviews Write a review

    You'll Receive Your House Plans FAST!  Order a PDF or CAD file today, and we will email your house plans today! 

    Order a printed plan package (1 Set, 5 Set, or Reproducible), and we'll print and ship your plans today as well (typically 3-5 days to receive via UPS)!

    Upgrade to expedited shipping for even faster delivery to your front door!  

    Customer Reviews

    Based on 4 reviews
    100%
    (4)
    0%
    (0)
    0%
    (0)
    0%
    (0)
    0%
    (0)
    D
    Darren C.
    It's PERFECT and now my dream has come true!

    My wife's Grandfather passed away and we decided to sell our then current home to build near her.

    It had always been my dream to build a Craftsman style home because I absolutely love the architecture and the simplicity. Now was my chance!

    We bought magazines from home improvement stores and looked online at countless plans. We always, always kept coming back to this plan from House Plan Gallery.

    The size is perfect. The bathrooms are roomy, the room sizes are good. The media room was a bonus (so the kids could play their games and leave our TV alone!). We loved it, and still do after living there for a year. I would not change anything about it or the way we did it.

    Its PERFECT and now my dream has come true!

    M
    Mike H.
    What excellent service!

    What excellent service! We had chosen a beautiful house plan from a houseplan website, called House Plan Gallery to customize it, & found out that it had actually been created by the Mathis Brothers! We were so proud to have the original designer customize our home for us - right here in Mississippi. Working with HPG was so easy & we are very pleased with the results

    T
    Ted J.
    I would not hesitate to recommend House Plan Gallery!

    I was pleased with both the quality of design as well as the service I received from House Plan Gallery. My customized plans were exactly what I needed and the building department had no problems with the details of the plans. I would not hesitate to recommend House Plan Gallery!

    S
    Scott S.
    Great company for designing your dream house plans!

    Great company for designing your dream house plans! I picked out a set of plans and asked that they be modified. They did it without issue and had them ready in no time! Scott S.