HPG-2419-1: The Grayson Court - House Plan Gallery
HPG-2419-1: The Grayson Court - House Plan Gallery
HPG-2419-1: The Grayson Court - House Plan Gallery

Like this plan, but need some modifications?



View Answers to Frequently Asked Questions

HPG-2419-1: The Grayson Court

Base Price:
$1,250.00
  • Regular price $1,600.00 $1,250.00 On Sale

    Click the "Add to Cart" button to review your order.

    You're making a very smart decision to choose a House Plan Gallery plan!


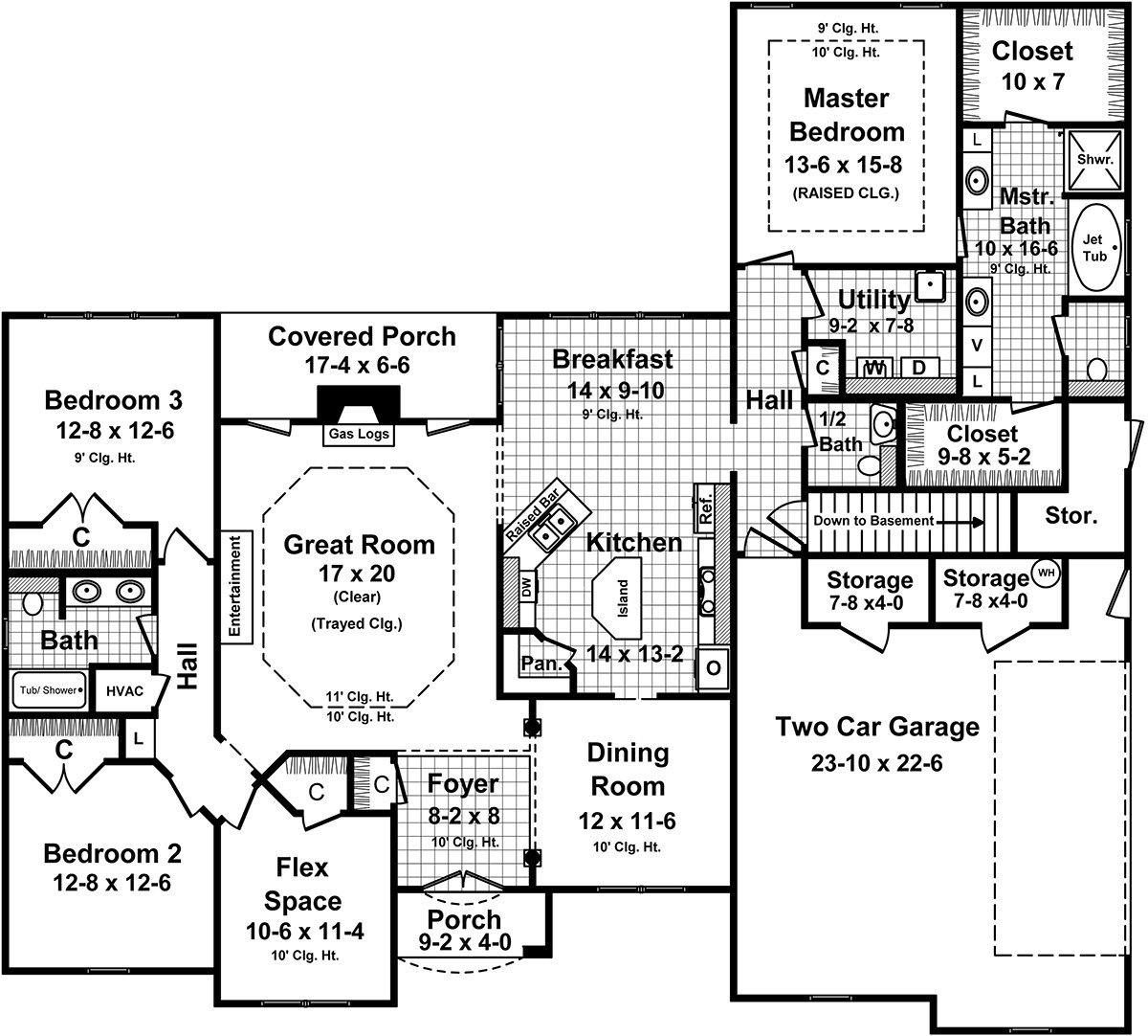
    Bedrooms: 3 / Baths: 2.5

    Living Sq. Ft.: 2419

    Width: 69' - 2"  Depth: 63' - 2"

    Architectural style(s):
    European / French Country / Traditional

    This elegant brick home blends traditional style with thoughtful modern design. A stately front elevation welcomes you into a smart split-bedroom layout ideal for family living. The great room boasts a trayed ceiling and gas fireplace, opening to a cozy rear covered porch that’s perfect for relaxing or entertaining. The spacious kitchen includes an angled island, walk-in pantry, and easy access to both the breakfast nook and formal dining room.

    The master suite is privately situated and features a raised ceiling, luxurious bath with separate shower and jet tub, and dual walk-in closets. Bedrooms 2 and 3 share a full hall bath, while a versatile flex room near the front is perfect for a home office, hobby space, or additional guest room. The large laundry area, mudroom-style storage, and two-car garage with additional storage bays ensure everyday convenience. A timeless layout, filled with functional charm, designed to feel like home.

    Foundation Type(s) Available:
    Basement

    Levels: 1   Garage: Yes       Wall type: 2x4

    Exterior finish: Brick / Siding / Stucco Bonus Room: No

    =======

    Designer Comments:
    First Floor: 2419 sq. ft. (living)
    Front Porch: 38 sq. ft. (unheated)
    Rear Porch: 101 sq. ft. (unheated)
    Garage / Storage: 734 sq. ft. (unheated)

    No video currently available.

     

    Check out other architecturaldesigns from House Plan Gallery.

    All of our house plans include the following:

    Cover Sheet Showing architectural rendering of residence

    Floor Plan(s) In general, each house plan set includes floor plans at 1/4" scale with a door and window schedule. Floor plans are typically drawn with 4" exterior walls. However, some plans may have details/sections for both 2"x4" and 2"x6" wall framing. Please see "Exterior Wall Framing" specification above for availability.

    Foundation Plan and Details Electrical Plan with electrical symbols legend: In general, each house plan set includes an electrical plan which will show the locations of lights, receptacles, switches, etc.

    Roof Drainage Plan In general each house plan set may include a roof drainage plan which will show the layouts of all roof sections/planes.

    Exterior Elevations In general, each house plan set includes all applicable front, sides and rear elevations, as well as any special exterior details.

    Interior Elevations Where applicable, each house plan set includes relevant interior elevations, including cabinets, cabinet details, columns and walls with unique conditions.

    Single Use License Unless you buy a multi-use license you may only build one home from a set of plans. Plans cannot be re-sold or transferred.

    We can modify this house plan to fit your EXACT needs!  

    To get started, we can provide you with a 100% FREE No-Obligation modifications quote.

    Just click on the link below to fill out our quick & easy online form and let us know exactly what modifications you'd like done, and we'll email over your free quote within 1-2 business days!

    Get started by CLICKING HERE

    Customer Reviews

    Based on 1 review Write a review

    You'll Receive Your House Plans FAST!  Order a PDF or CAD file today, and we will email your house plans today! 

    Order a printed plan package (1 Set, 5 Set, or Reproducible), and we'll print and ship your plans today as well (typically 3-5 days to receive via UPS)!

    Upgrade to expedited shipping for even faster delivery to your front door!  

    Customer Reviews

    Based on 1 review
    100%
    (1)
    0%
    (0)
    0%
    (0)
    0%
    (0)
    0%
    (0)
    A
    Alan B.
    Very good caring staff!

    Good selection of plans. Very good caring staff