HPG-1804-1: The Camelia Ridge - House Plan Gallery
HPG-1804-1: The Camelia Ridge - House Plan Gallery
HPG - 1804N - 1: The Oakshade Springs - House Plan Gallery
HPG-1804-1: The Camelia Ridge - House Plan Gallery

Like this plan, but need some modifications?



View Answers to Frequently Asked Questions

HPG-1804-1: The Camelia Ridge

Base Price:
$1,150.00
  • Regular price $1,500.00 $1,150.00 On Sale

    Click the "Add to Cart" button to review your order.

    You're making a very smart decision to choose a House Plan Gallery plan!


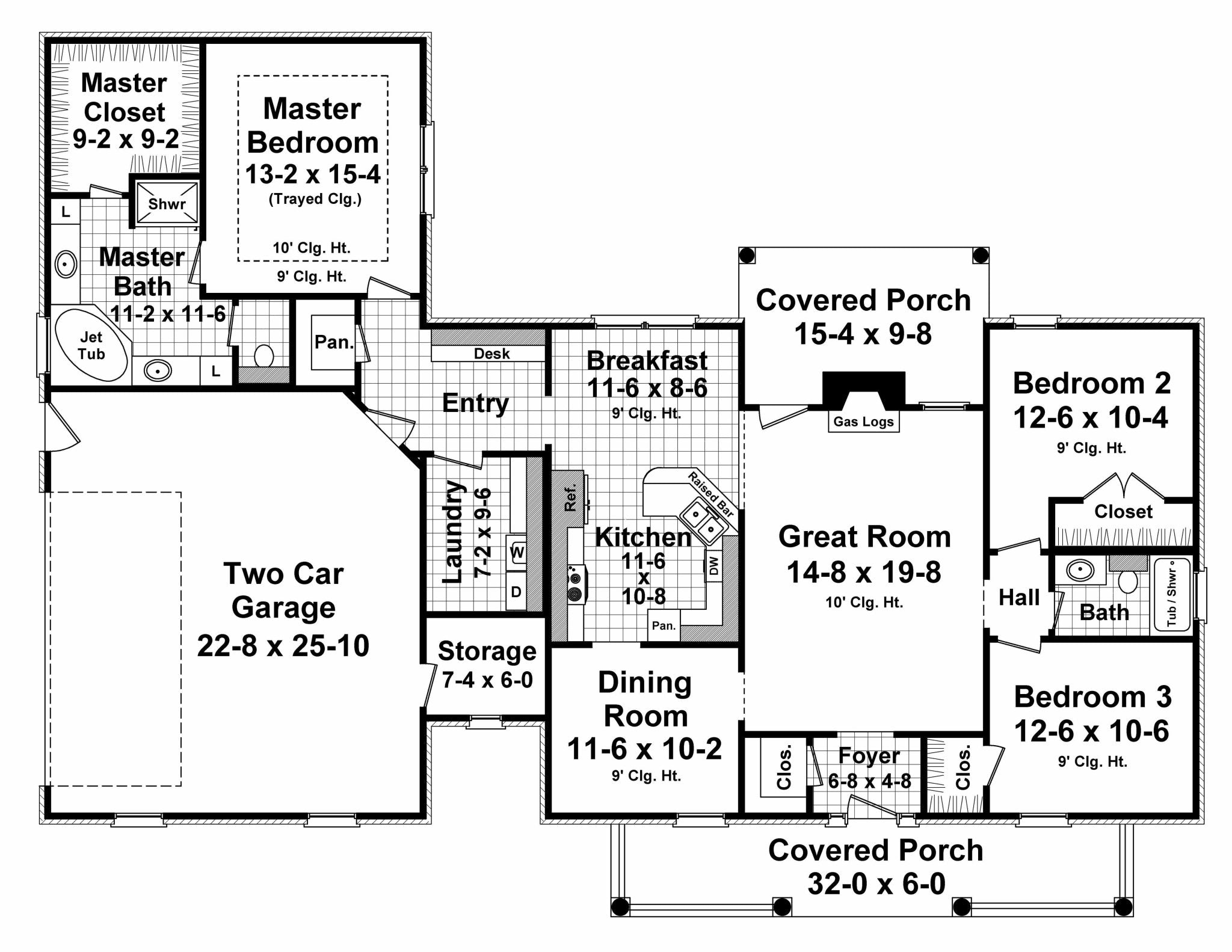
    Bedrooms: 3 / Baths: 2

    Living Sq. Ft.: 1804

    Width: 70' - 8" / Depth: 53' - 10"

    Architectural style(s):
    Country / Traditional

    This charming country-style home combines timeless elegance with modern functionality. Featuring a welcoming front porch with classic columns, this home offers 3 bedrooms, 2 bathrooms, and an open-concept living space perfect for family gatherings. The spacious great room boasts vaulted ceilings and a cozy gas fireplace, seamlessly flowing into the kitchen and breakfast area. The kitchen includes a functional island, ample cabinetry, and a convenient pantry.

    The private master suite is a retreat of its own, featuring a tray ceiling, a luxurious master bath with a jet tub, a separate shower, dual vanities, and a large walk-in closet. Two additional bedrooms offer ample space and share a well-appointed hall bath.

    Outdoor living is a highlight, with both front and rear covered porches, perfect for relaxing or entertaining. A two-car garage with extra storage adds practicality. This thoughtfully designed home is ideal for families seeking comfort, style, and efficiency.

    Foundation Type(s) Available:
    Crawlspace / Slab

    Levels: 1    Garage: Yes       Wall type: 2x4
    Exterior finish: Brick / Siding   Bonus Room:  No

    =======

    Designer Comments:
    First Floor: 1,804 sq. ft. (living)
    Front Porch: 192 sq. ft. (unheated)
    Rear Porch: 133 sq. ft. (unheated)

    Garage / Storage: 641 sq. ft. (unheated)

    HPG-1635B, HPG-1600, HPG-1934, HPG-1934B, HPG-1600B

    Looking for a Basement foundation version of this plan? See house plan HPG-1815

    No video currently available.

     

    Check out these house plans with videos from House Plan Gallery.

    All of our house plans include the following:

    Cover Sheet Showing architectural rendering of residence

    Floor Plan(s) In general, each house plan set includes floor plans at 1/4" scale with a door and window schedule. Floor plans are typically drawn with 4" exterior walls. However, some plans may have details/sections for both 2"x4" and 2"x6" wall framing. Please see "Exterior Wall Framing" specification above for availability.

    Foundation Plan and Details Electrical Plan with electrical symbols legend: In general, each house plan set includes an electrical plan which will show the locations of lights, receptacles, switches, etc.

    Roof Drainage Plan In general each house plan set may include a roof drainage plan which will show the layouts of all roof sections/planes.

    Exterior Elevations In general, each house plan set includes all applicable front, sides and rear elevations, as well as any special exterior details.

    Interior Elevations Where applicable, each house plan set includes relevant interior elevations, including cabinets, cabinet details, columns and walls with unique conditions.

    Single Use License Unless you buy a multi-use license you may only build one home from a set of plans. Plans cannot be re-sold or transferred.

    We can modify this house plan to fit your EXACT needs!  

    To get started, we can provide you with a 100% FREE No-Obligation modifications quote.

    Just click on the link below to fill out our quick & easy online form and let us know exactly what modifications you'd like done, and we'll email over your free quote within 1-2 business days!

    Get started by CLICKING HERE

    Customer Reviews

    Based on 5 reviews Write a review

    You'll Receive Your House Plans FAST!  Order a PDF or CAD file today, and we will email your house plans today! 

    Order a printed plan package (1 Set, 5 Set, or Reproducible), and we'll print and ship your plans today as well (typically 3-5 days to receive via UPS)!

    Upgrade to expedited shipping for even faster delivery to your front door!  

    Customer Reviews

    Based on 5 reviews
    100%
    (5)
    0%
    (0)
    0%
    (0)
    0%
    (0)
    0%
    (0)
    S
    Scott S.
    Great company for designing your dream house plans!

    Great company for designing your dream house plans! I picked out a set of plans and asked that they be modified. They did it without issue and had them ready in no time! Scott S.

    L
    Lynn B.
    Great people to work with.

    Great people to work with. So helpful in getting what I was looking for. Would definitely use them again

    J
    Janet T.
    Thank you for your help!

    We ordered our floor plans and received them quickly. Our contractor was able to get started and had everything he needed. Thank you for your help!

    M
    Mary Beth S.
    The home is so beautiful. Its a dream come true for us!

    We have gotten so many compliments on the details of this house. We were our own general contractors and added some personal details to the home. It is wonderful walking through and knowing where every nail and screw is placed. And I have a photo journal of the entire process.

    The home is perfect for entertaining with its open floor plan, and I enjoy the privacy the split bedroom plan offers. I love the front porch and the cozy fireplace. It took a long time, but we found the perfect home. The people at HousePlanGallery.com were willing to modify the plans to suit our needs.

    The home is so beautiful. Its a dream come true for us!

    G
    Gina G.
    We love the house!

    We love the house!