HPG-1752B-1: The Castle Rock - House Plan Gallery
HPG-1752B-1: The Castle Rock - House Plan Gallery
HPG-1752B-1: The Castle Rock - House Plan Gallery

Like this plan, but need some modifications?



View Answers to Frequently Asked Questions

HPG-1752B-1: The Castle Rock

Base Price:
$1,150.00
  • Regular price $1,500.00 $1,150.00 On Sale

    Click the "Add to Cart" button to review your order.

    You're making a very smart decision to choose a House Plan Gallery plan!


    Bedrooms: 3 / Baths: 2

    Living Sq. Ft.: 1752

    Width: 64' - 0" / Depth: 45' - 10"

    Architectural style(s):
    Country / European / Traditional

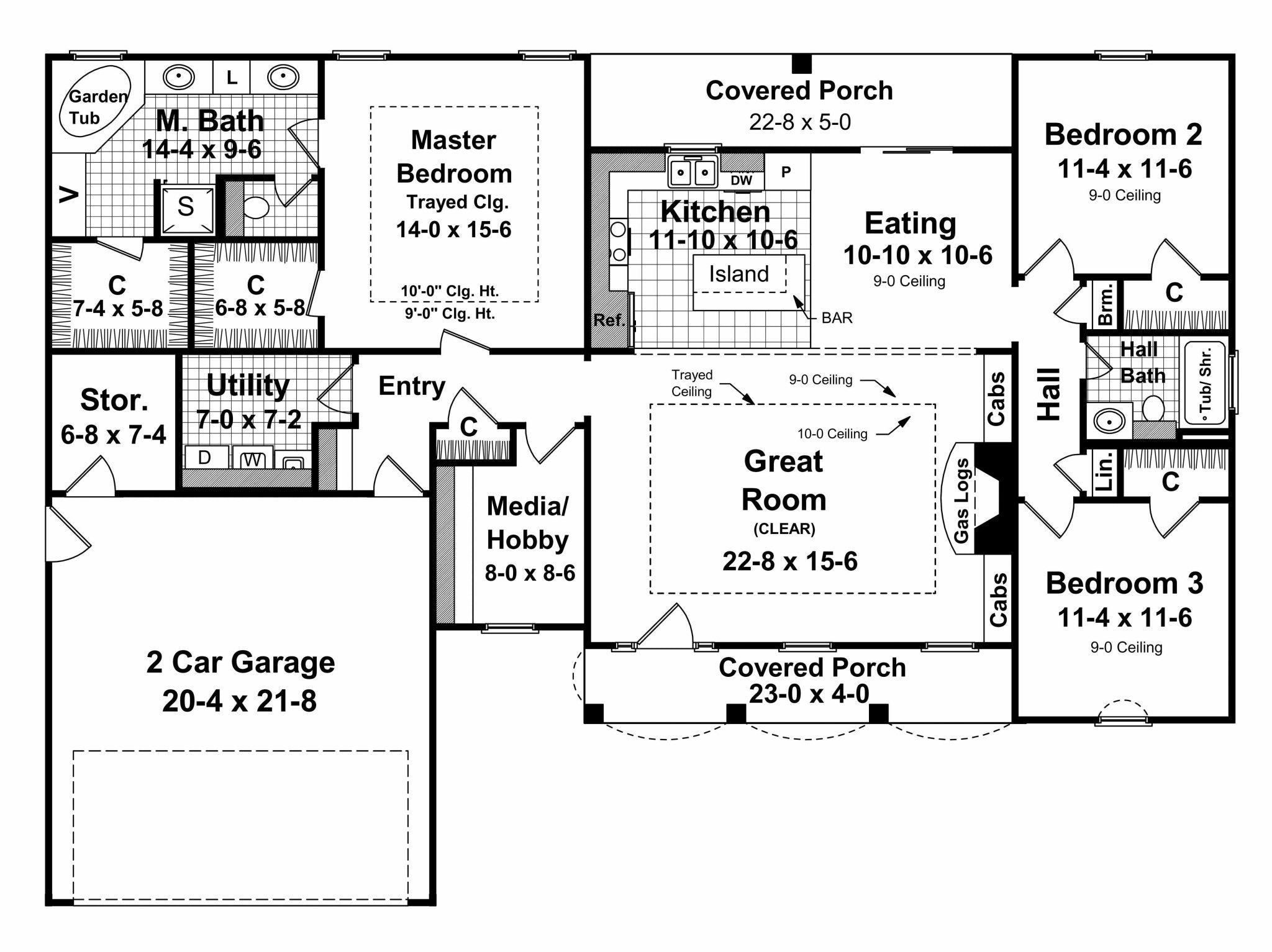
    This charming country-style home offers the perfect blend of classic elegance and modern functionality. With three bedrooms, two bathrooms, and an additional flex space, this thoughtfully designed layout provides versatility to meet your family’s needs. The open-concept great room, featuring a trayed ceiling and gas fireplace, seamlessly connects to the kitchen and eating area, creating a warm and inviting gathering space. The spacious master suite boasts a luxurious ensuite bathroom with a garden tub, walk-in shower, and dual vanities, providing a private retreat.

    Enjoy the outdoors with both front and rear covered porches, perfect for relaxation and entertaining. The media/hobby room adds an extra touch of convenience for work or play. A two-car garage with additional storage space completes this home, offering ample room for organization. Blending timeless curb appeal with practical design, this home is ideal for families seeking comfort, style, and flexibility.

    Foundation Type(s) Available:
    Crawlspace / Slab

    Levels: 1    Garage: Yes       Wall type: 2x4
    Exterior finish: Siding  Bonus Room:  No

    =======

    Designer Comments:
    First Floor: 1,752 sq. ft. (living)
    Front Porch: 92 sq. ft. (unheated)
    Rear Porch: 113 sq. ft. (unheated)

    Garage / Storage: 513 sq. ft. (unheated)

    No video currently available.

    All of our house plans include the following:

    Cover Sheet Showing architectural rendering of residence

    Floor Plan(s) In general, each house plan set includes floor plans at 1/4" scale with a door and window schedule. Floor plans are typically drawn with 4" exterior walls. However, some plans may have details/sections for both 2"x4" and 2"x6" wall framing. Please see "Exterior Wall Framing" specification above for availability.

    Foundation Plan and Details Electrical Plan with electrical symbols legend: In general, each house plan set includes an electrical plan which will show the locations of lights, receptacles, switches, etc.

    Roof Drainage Plan In general each house plan set may include a roof drainage plan which will show the layouts of all roof sections/planes.

    Exterior Elevations In general, each house plan set includes all applicable front, sides and rear elevations, as well as any special exterior details.

    Interior Elevations Where applicable, each house plan set includes relevant interior elevations, including cabinets, cabinet details, columns and walls with unique conditions.

    Single Use License Unless you buy a multi-use license you may only build one home from a set of plans. Plans cannot be re-sold or transferred.

    We can modify this house plan to fit your EXACT needs!  

    To get started, we can provide you with a 100% FREE No-Obligation modifications quote.

    Just click on the link below to fill out our quick & easy online form and let us know exactly what modifications you'd like done, and we'll email over your free quote within 1-2 business days!

    Get started by CLICKING HERE

    Customer Reviews

    Based on 5 reviews Write a review

    You'll Receive Your House Plans FAST!  Order a PDF or CAD file today, and we will email your house plans today! 

    Order a printed plan package (1 Set, 5 Set, or Reproducible), and we'll print and ship your plans today as well (typically 3-5 days to receive via UPS)!

    Upgrade to expedited shipping for even faster delivery to your front door!  

    Customer Reviews

    Based on 5 reviews
    100%
    (5)
    0%
    (0)
    0%
    (0)
    0%
    (0)
    0%
    (0)
    G
    Geof & Jenny C.
    Thanks House Plan Gallery for a beautiful house plan, which has turned into a beautiful house, wh...

    My wife (Jenny) and I (Geof) had been living in the Lower Main Land of British Columbia (Canada). We enjoyed our work and our friends there but were really wanting to move back to North Western Alberta to own some land and enjoy the open spaces. My growing girls had always dreamed of having their own horses and this was something that was not going to happen in BC. I also longed to get back to hunting, quading, and snowmobiling, again things I'd not be able to afford in BC. A large draw was also to live closer, once again, to a favorite cousin who was one of my best friends--Robert. Robert had been a bachelor for many years and finally met the woman of his dreams. We were looking so forward to getting to know Robert and his new wife Katrin, as a couple.

    Tragically, six weeks after we had moved and three days short of their one year anniversary, Robert died in his sleep. We were devastated and wondered if we had made a mistake. We almost moved back to BC, because we didn't know how we could move forward, having had such a huge loss. Slowly the healing began to take hold and we started to think again about building our dream home. Robert's widow, Katrin, told us that one of Robert's last wishes that he expressed to her was that he wanted to sell a treasured piece of land to us.

    Robert and I grew up hunting, horseback riding, snowmobiling, and playing on this beautiful property. When Katrin told us she'd like to sell this land to us, we were moved to tears and happily bought it from her. Many years earlier, Robert had cleared out an area on this property that he hoped to eventually build a log cabin on. He started building the log cabin with large sruce trees that dominated the property. He never did complete it as he just got too busy farming, but he did move the logs to his residence, just in case he would have time to work on it further. Once he passed away and even before we knew what house plan we would build, we knew where we would build the house. It would be on the spot that Robert had always dreamed of building his log cabin.

    Jenny and I are not log cabin people, so that was never a question, but we wanted to somehow acknowledge Robert's dream for this part of the land. We have built our dream house and to top it off we plan to use some wood from Robert's half-built log cabin to make a mantle for our fireplace in our great room. Through our grief, the excellent design and assistance from House Plan Gallery to modify our plan has helped working through our loss a little more bearable. Many of Robert's friends and family members who have seen our house, have commented that Robert would have been so pleased to see what we've done with this property.

    When we found your plans, we knew we found what we were looking for... Some of our favorite features of this home design are the spacious great room, the beautiful dormer windows at the front which let in a lot of natural light, and an amazing master bedroom and suite.

    This house is not just our dream house, it is a memorial to an amazing godly man who was everyone's friend and whose influence is still being felt in so many people's lives to this day. Thanks House Plan Gallery for a beautiful house plan, which has turned into a beautiful house, which has become our home, which has brought a lot of peace and comfort...

    R
    Randy B
    We found the home of our dreams!!

    We found the home of our dreams but wanted to make some modifications to the layout. Our requests were answered by phone and email very very quickly. The modifications we asked for were completed quickly as well. My contractors were surprised at the price I paid for the plans, not to mention the fact that I had them modified and still paid that cheap of a price. We had no issues at all during our build from any of the plans. This has been a great company to work with. I would not even search for another company if I had to build another house.

    S
    Scott S.
    Great company for designing your dream house plans!

    Great company for designing your dream house plans! I picked out a set of plans and asked that they be modified. They did it without issue and had them ready in no time! Scott S.

    R
    Robert J.
    Job well done!

    The building of the HPG-1364-1 home is going great, I appreciated all that your company has done to help me in the process.

    J
    Jennifer J.
    Your house plans are the best investment we have ever made!

    We built the home in 2008 and we've loved it ever since! Your house plans are the best investment we have ever made!